人気のキーワード
古民家
家庭菜園

ガレージ魅力です、 秩父駅から歩いて8分魅力です。 庭にハナミズキ咲く 秩父市道生町の6DKのお家。

  • 駐車場あり
  • 病院近く
  • コンビニ・スーパー近く
  • 駅近く
  • ネット光回線
  • 家庭菜園できる
いろいろ
秩父鉄道『秩父駅』から歩いて8分のお家へは
市立病院入口交差点を左折して
90m先左手です
近くの秩父公園橋までは歩いて7分
秩父公園橋の下には清流荒川が流れます
近くの公園橋モールまでは歩いて7分
近くの札所十六番さんはしだれ桜の綺麗なお寺さん
秩父神社さんは歩いて7分
神社さんからはここを右折して
140m先右手です
このお家
シャッターを
開けると
電動であけると
ガレージに
奥のシャッターをあけると
お庭に
お庭から
ガレージに収納 スペース、これ絶対便利
上見るとしっかりした鉄骨で
ガレージ横に
玄関
玄関ドア
あけて
入ります
この下駄箱、既製品でないよね
職人さんの手造りですよね
玄関ホール、壁は真壁で
腰板を設え
天井はなんと格天井
玄関入って右手の和室
ガレージに出られます
玄関正面の建具をあけて
手前の和室
摺り上げ猫間障子をあけて
手前の和室
庭に出られます
奥の和室
細かい仕事
ダイニングキッチン
流し台
出窓は樹脂サッシで二重に
洗面脱衣室
上部の窓、採光や通風に
浴室
これは???
浴室換気暖房乾燥機
出窓は樹脂サッシで二重に
袖壁で目隠しをして
ここも二重に
素敵な建具の先に
手前には
奥の建具を開けて
トイレ
ここも二重に
廊下の天井に
上がってみると
小屋裏
二階へ
この位置の洗面便利そうです
二階和室
二階和室
ベランダに出られます
ベランダから下を
二階和室
丸窓が素敵
二階の和室
ベランダに出られます
水シミ?
二階トイレ
二階廊下
二階廊下
断熱雨戸
外水道
お庭
お庭
庭のハナミズキ
ハナミズキ
庭のツツジ
公営水道
本下水
秩父の羊山公園
羊山公園の芝桜の丘
秩父鉄道『お花畑駅』から歩いて14分
西武鉄道『西武秩父駅』から歩いて18分
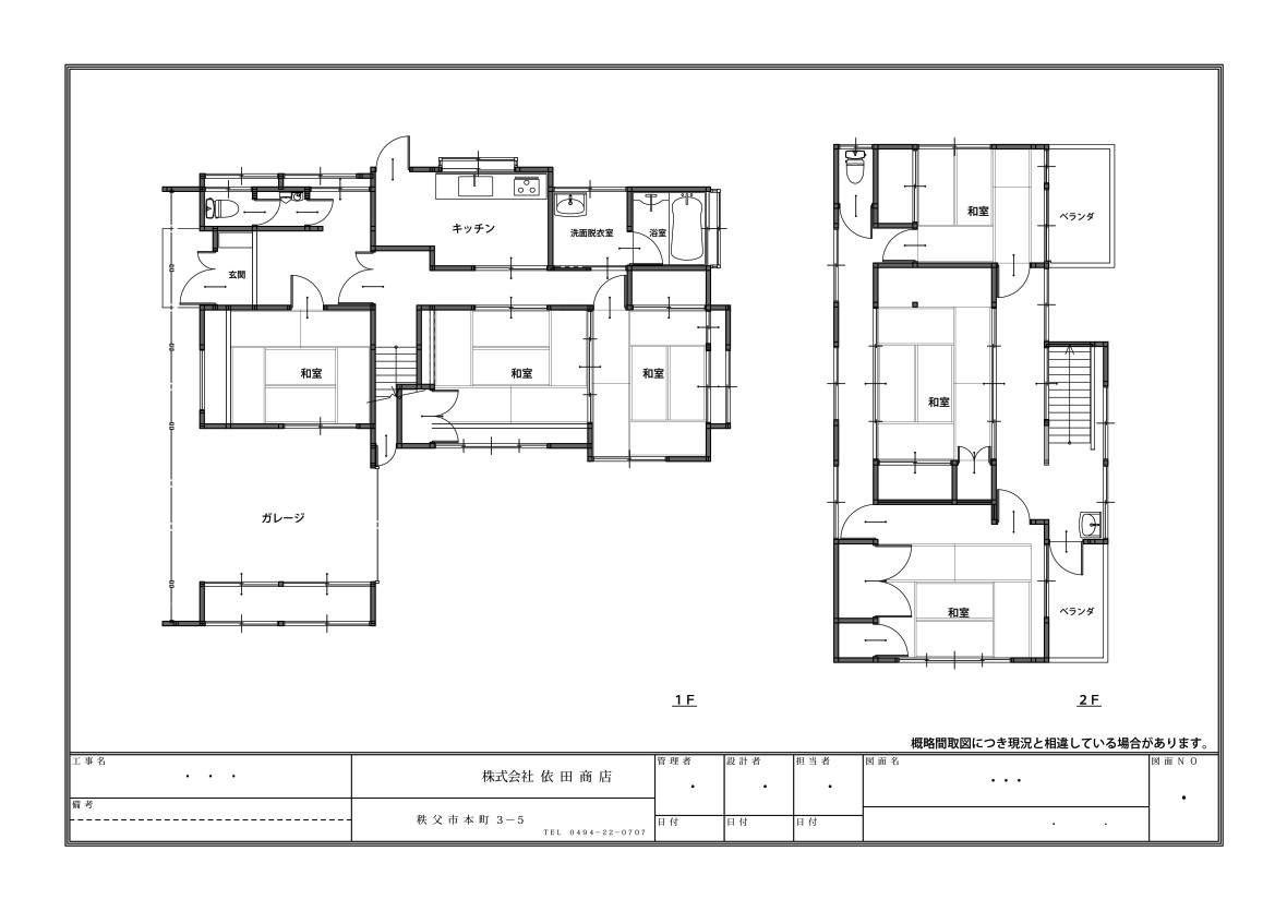
間取り図
  • いろいろ
  • 秩父鉄道『秩父駅』から歩いて8分のお家へは
  • 市立病院入口交差点を左折して
  • 90m先左手です
  • 近くの秩父公園橋までは歩いて7分
  • 秩父公園橋の下には清流荒川が流れます
  • 近くの公園橋モールまでは歩いて7分
  • 近くの札所十六番さんはしだれ桜の綺麗なお寺さん
  • 秩父神社さんは歩いて7分
  • 神社さんからはここを右折して
  • 140m先右手です
  • このお家
  • シャッターを
  • 開けると
  • 電動であけると
  • ガレージに
  • 奥のシャッターをあけると
  • お庭に
  • お庭から
  • ガレージに収納 スペース、これ絶対便利
  • 上見るとしっかりした鉄骨で
  • ガレージ横に
  • 玄関
  • 玄関ドア
  • あけて
  • 入ります
  • この下駄箱、既製品でないよね
  • 職人さんの手造りですよね
  • 玄関ホール、壁は真壁で
  • 腰板を設え
  • 天井はなんと格天井
  • 玄関入って右手の和室
  • ガレージに出られます
  • 玄関正面の建具をあけて
  • 手前の和室
  • 摺り上げ猫間障子をあけて
  • 手前の和室
  • 庭に出られます
  • 奥の和室
  • 細かい仕事
  • ダイニングキッチン
  • 流し台
  • 出窓は樹脂サッシで二重に
  • 洗面脱衣室
  • 上部の窓、採光や通風に
  • 浴室
  • これは???
  • 浴室換気暖房乾燥機
  • 出窓は樹脂サッシで二重に
  • 袖壁で目隠しをして
  • ここも二重に
  • 素敵な建具の先に
  • 手前には
  • 奥の建具を開けて
  • トイレ
  • ここも二重に
  • 廊下の天井に
  • 上がってみると
  • 小屋裏
  • 二階へ
  • この位置の洗面便利そうです
  • 二階和室
  • 二階和室
  • ベランダに出られます
  • ベランダから下を
  • 二階和室
  • 丸窓が素敵
  • 二階の和室
  • ベランダに出られます
  • 水シミ?
  • 二階トイレ
  • 二階廊下
  • 二階廊下
  • 断熱雨戸
  • 外水道
  • お庭
  • お庭
  • 庭のハナミズキ
  • ハナミズキ
  • 庭のツツジ
  • 公営水道
  • 本下水
  • 秩父の羊山公園
  • 羊山公園の芝桜の丘
  • 秩父鉄道『お花畑駅』から歩いて14分
  • 西武鉄道『西武秩父駅』から歩いて18分
  • 間取り図

この物件のおすすめポイント

内覧等のお問合せは、

特記事項を含めホームページ内の内容をすべてお読みいただき

ご理解いただきましたのちにお願いいたします。

 

秩父鉄道『秩父駅』     歩いて8分

西武鉄道『西武秩父駅』   歩いて18分

秩父の中心の駅から20分以内で歩く事のできるお家、ちちぶ空き家バンクの中でも少ないです。

 

ショッピングモール『公園橋モール』さん 歩いて7分

ショッピングモール『ウニクス』さん   歩いて13分

大型スーパーまで15分以内で歩く事のできるお家、ちちぶ空き家バンクの中でも少ないです。

 

秩父の中心、本町商店街や宮側商店街の近くに位置する住宅街が道生町、

ですから、秩父の街中の商店や秩父神社さんまで歩けます、

くわえて、大型スーパーやホームセンターやドラッグストアやモールまで歩けます、

なので、駐車場の心配なくお買物やお食事や街の散策ができますね。

 

秩父市民のオアシス、羊山公園も1.9km程、あの芝桜の丘までも2.8km程です

秩父公園橋に向かう、歩道が綺麗に整備されている秩父駅前通りまで90mです

なので、夏は朝、冬は昼、ウォーキングに出かけることできますね。

秩父地域の中心の駅(バス便の発着はほとんど西武秩父駅と秩父駅)まで歩けます

なので、ここをベースキャンプに、

三峰等の奥秩父方面

両神山等の小鹿野町方面

武甲山等の横瀬町方面

美の山等の皆野町方面

宝登山等の長瀞町方面

を、気軽に楽しむことができますね。

 

交通は

秩父鉄道『秩父駅』              620m

秩父鉄道『御花畑駅』           1,050m

西武鉄道『西武秩父駅』          1,400m

 

買物は

ショッピングモール『公園橋モール』さん   540m

(スーパーのベルクさんをキーテナントにホームセンターやドラッグストア、ATM)

ショッピングモール『ウニクス』さん       1000m

(スーパーのヤオコーさんをキーテナントに様々なお店が、映画館も)

スーパー『ベルク 東町店』さん         900m

コンビニ『ファミリーマート』さん     470m

コンビニ『セブンイレブン』さん      540m

ドラッグストア『セキ』さん        580m

ホームセンター『コメリ』さん      1300m

宮側商店街の通りまで           470m

本町商店街の通りまで           470m

番場商店街の通りまで           600m

 

公共施設は

秩父市役所                1,200m

宮側郵便局                  360m

中村郵便局                  420m

 

学校は

秩父市立西小学校            820m

秩父市立第一中学校          1,700m

 

病院は

秩父市立病院               290m

 

他は

秩父神社さん               550m

(以上はアプリからの数値です)

ここ、駅や買物、等々、不便を感じない場所です。

 

土地は、約60坪の広さ、ちょうどいい大きさです。

道沿いは電動シャッターのガレージになっており外から見えませんが奥にお庭があります。

植木を切れば家庭菜園もできそうです。

 

建物は、元々あった木造平家の建物に、

昭和50年に鉄骨造にて増築をし、

平成3年に元の平家の建物を取壊し木造にて増築をしております、

築年数は経っておりますが、綺麗です、大規模な修繕なしで使い始められるのではないかと想像できます。

 

各写真にはキャプションもつけております、

写真一覧の中で間取図も紹介しております、

最後までご覧いただければ幸いです。

一部、以前の写真が含まれます。

 

お問い合わせは、別欄『特記事項』を必ずご確認いただいた後、お願いいたします。

お問い合わせフォームの『住所』欄の一部省略はおやめください、

また、アンケートの選択もお願いいたします。

写真を含めた本記事内容の、無断複写や転載等(SNSやブログを含めて)は、

かたくお断りいたします。

 

『近い田舎 と 近い仲 ちかいなか秩父』で、

お客様をお待ちいたしております。

秩父市HP

この物件について問い合わせする

内覧申し込みを含む本物件に関する
お問い合わせには利用者登録が必要です

利用者登録

本物件には仲介手数料が発生します
内覧をご希望の場合には必ず担当業者へご連絡いただき、現地訪問をお願いします

物件概要

秩父市

基本情報

物件番号:秩-176
価格
1420万円
住所
埼玉県秩父市道生町21-16(地番/3104-14)
分類
土地と建物
売却・賃貸
売却
取引形態
媒介
主要施設へのアクセス
「物件のおすすめポイント」を参照ください。
設備
電気:東京電力エナジーパートナー等
水道:公営
排水:水洗(本下水)
ガス:プロパンガス
土地面積 (公簿)
198 m2
(59.89 坪)
建物面積 (公簿)
190 m2
(57.39 坪)
用途地域
都市計画区域内第一種住居地域
接道状況
概ね西側で公道に接します。
特記事項
土地面積は、登記事項証明書よりの数値です。
建物面積は、登記事項証明書よりの数値です。

境界の明示は行ないません。

現状にてのお取引きとなります。

本物件の内覧は、
事前にご自身で現地周辺を実際に訪れていただき、
周辺環境含め、立地や物件の雰囲気がご希望に合い、
内覧して問題なければお申込みいただけるお客様にかぎらせていただきます、
実際に訪れていただけていないのに
「確認しました」の連絡は遠慮願います。
「以前周辺を通った事がある」や
「ストリートビューで確認した」の連絡も遠慮願います。
ご本人様ご家族様以外とご一緒での内覧はご遠慮願います。
現在および将来の防犯の観点から、多くのかたに内覧いただく事は望んでおりません。

改めての内覧日のお約束は、本ホームページ問い合わせフォームからお願いいたします、
直前でのご連絡の場合、ご希望にそえない事が多いと思いますがご了承ください。
なお、電話にての予約はお受けいたしておりません。
また、ご本人様以外からの予約はお受けいたしておりません。

虚偽の内容にてのお問い合わせはご遠慮願います、
他のお客様並びに売主様に迷惑をお掛けする場合があります。

ちちぶ空き家バンクでは、
内覧時には、事務局宛の『ちちぶ空き家バンク物件内覧確認書』をご提出いただいております。
購入時には、秩父市宛の『空き家利用申込書』並びに『誓約書』をご提出いただいております。
転売目的、賃貸目的、宿泊業目的、等での利用は出来ません。

写真や動画の撮影はお断りいたします。

空き家バンクに登録されているお家を、
モデルハウスと思われているかたや
将来の参考に試しに見てみたいとのかたや
許可なく写真や動画撮影を行なうかたが多いため、
また、建物保護の観点から、
このようなかたちをとらさせていただいております、
ご理解いただけますと幸いです。

地図や地番を表記しておりますのでご自身で行かれて周辺から見ていただくのは歓迎です、
なお、敷地内に入るのは絶対に止めて下さい、ご近所さんから不審に思われることがあります。
過去、庭の樹々や建物の一部を毀損したのではと思われる事象がありました、敷地内には入らないでください。
過去、近所のお家をかってに写真に撮られたかたがおりました、そのような行為は行なわないでください。
道路から見ていただく際に駐停車や方向転換等でご近所さんの迷惑になる行為は絶対に行なわないでください。
近隣のお宅を訪ねることは絶対に止めて下さい、昨今、知らない人に突然訪問されるのは不安になるものです。

固定資産税額、売却理由、どのような売主さんか、等のお問い合わせには
お答えできません、ご理解いただけますと幸いです。
なお、資料等の送信や郵送はいたしておりません。

お問い合わせやお申込みが重なった場合には、
売主さんの意向や、ちちぶ空き家バンクの趣旨を鑑みて判断をさせていただきます場合がございます。
内覧のお約束をさせていただいてた場合でも、購入のお申し込みがあった場合には直前での内覧のお断りをさせていただく場合があります、この場合、メールにての連絡とさせていただきます。

住宅ローンは、築年数の経っている物件、田舎の物件、の場合難しいことが多いです、
内覧いただく前に事前にこの物件でご自身にて金融機関にお問い合わせください。

感染症罹患防止のため、ご案内は最小限の人数でとさせていただいております、
なお、感染拡大等によりご案内をお断りさせていただく場合がございます。
また、荒天によりご案内をお断りさせていただく場合がございます。

建物情報

築年月
昭和50年増築、平成3年増築
構造
木造
間取り
写真一覧の間取図を参照ください。
補修の要否
補修が必要
補修の費用負担
入居者負担

取り扱い業者情報

登録日
2026年4月20日 19:11:58
取り扱い業者
依田商店
TEL:0494-22-0707
埼玉県知事(14)4441号
担当行政
秩父市移住相談センター

理想のライフスタイルから物件を探す

ゆったり週末暮らし
のびのび子育て
豊かな自然
広々庭付き・畑付き
生活に便利・街中ライフ