人気のキーワード
古民家
家庭菜園

街中の 大通り一本裏手の角地に建つ古民家、 ちちぶの小鹿野町 中庭のある趣ある和の空間、 ここ便利な場所です。

  • 新着物件
  • 駐車場あり
  • 病院近く
  • コンビニ・スーパー近く
  • 学校近く
  • 家庭菜園できる
  • 古民家
いろいろ
秩父市方面からはここを右へ、目印は丸通タクシーさん
反対側からは埼玉りそな銀行さん過ぎたら左
矢印の方へ、60m先左手の
角地のこのお家です
北側のこの土地と建物も含まれます
何かに使えそうです
間に道(公道)が
このように並んでいます
東側から
北東側から
表の
道から
門扉を開けて
玄関へ
玄関ドア引き戸だから便利な網戸が
広いです
上がって畳の
お部屋が
和室
続きの和室
奥の部屋には
床の間
縁側
北側の和室
こってます
初めて見ました
続きの和室
欄間がすごい
廊下のような縁側のような
中庭へ
おりられます
中庭
中庭
台所
流し台
勝手口?
浴室
レトロな手洗い
洗面化粧台
1階のトイレ
二階へ
2階
2階和室
2階和室
2階和室
和室の前に広縁のよう
ベランダ
とがっているのが武甲山
ギザギザなのが両神山
2階北側の洋室
続き間です
2階洋室
廊下に
2階トイレ
2階窓から
中庭から
物置小屋
中きれいです
外水道
浄化槽
近くのバス停、このバスは
西武鉄道『西武秩父駅』へ
メイン通りには銀行や旅館さんが
レトロな街並みはすぐ近く、いやこのお家も街並みの中かも
観光交流館
小鹿野中央病院
農協の直売所
秋、小鹿野町と秩父市にまたがるミューズパークの黄葉と紅葉
秋、小鹿野町両神のダリア園
冬、小鹿野町尾ノ内の氷柱
花と歌舞伎と名水のまち、小鹿野町
春夏秋冬 花いっぱい、小鹿野町
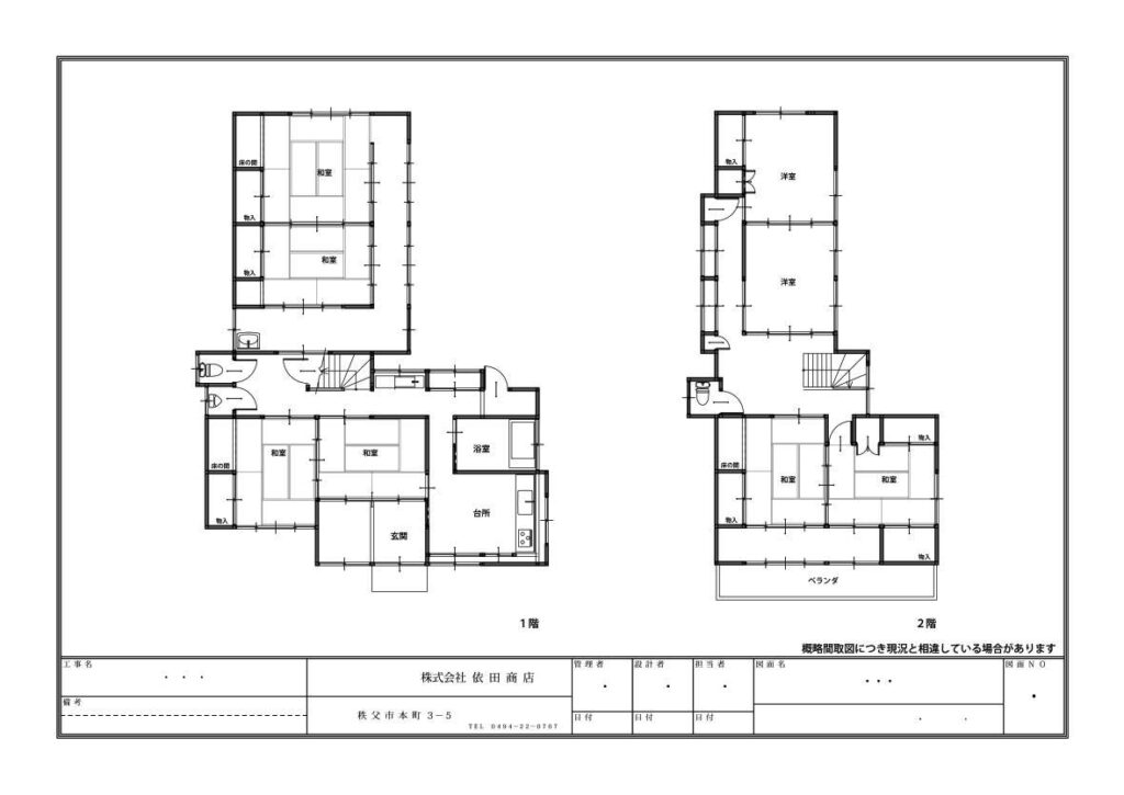
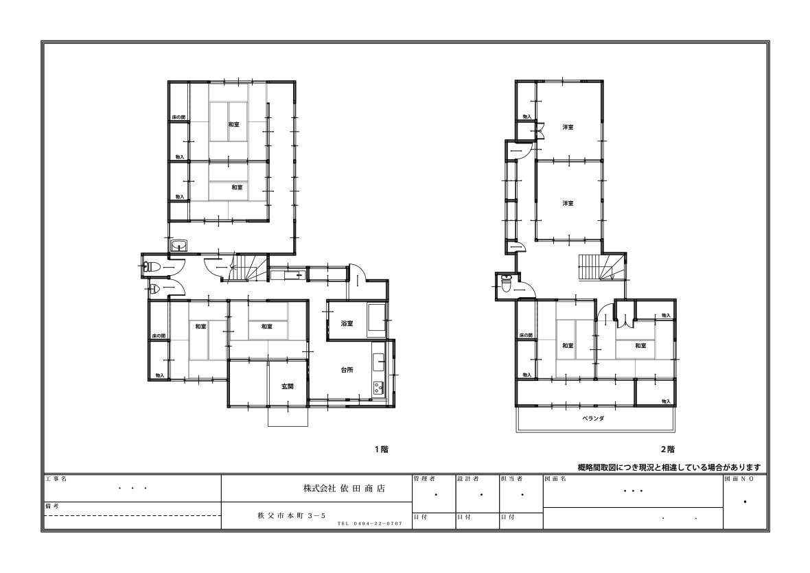
間取り図
  • いろいろ
  • 秩父市方面からはここを右へ、目印は丸通タクシーさん
  • 反対側からは埼玉りそな銀行さん過ぎたら左
  • 矢印の方へ、60m先左手の
  • 角地のこのお家です
  • 北側のこの土地と建物も含まれます
  • 何かに使えそうです
  • 間に道(公道)が
  • このように並んでいます
  • 東側から
  • 北東側から
  • 表の
  • 道から
  • 門扉を開けて
  • 玄関へ
  • 玄関ドア引き戸だから便利な網戸が
  • 広いです
  • 上がって畳の
  • お部屋が
  • 和室
  • 続きの和室
  • 奥の部屋には
  • 床の間
  • 縁側
  • 北側の和室
  • こってます
  • 初めて見ました
  • 続きの和室
  • 欄間がすごい
  • 廊下のような縁側のような
  • 中庭へ
  • おりられます
  • 中庭
  • 中庭
  • 台所
  • 流し台
  • 勝手口?
  • 浴室
  • レトロな手洗い
  • 洗面化粧台
  • 1階のトイレ
  • 二階へ
  • 2階
  • 2階和室
  • 2階和室
  • 2階和室
  • 和室の前に広縁のよう
  • ベランダ
  • とがっているのが武甲山
  • ギザギザなのが両神山
  • 2階北側の洋室
  • 続き間です
  • 2階洋室
  • 廊下に
  • 2階トイレ
  • 2階窓から
  • 中庭から
  • 物置小屋
  • 中きれいです
  • 外水道
  • 浄化槽
  • 近くのバス停、このバスは
  • 西武鉄道『西武秩父駅』へ
  • メイン通りには銀行や旅館さんが
  • レトロな街並みはすぐ近く、いやこのお家も街並みの中かも
  • 観光交流館
  • 小鹿野中央病院
  • 農協の直売所
  • 秋、小鹿野町と秩父市にまたがるミューズパークの黄葉と紅葉
  • 秋、小鹿野町両神のダリア園
  • 冬、小鹿野町尾ノ内の氷柱
  • 花と歌舞伎と名水のまち、小鹿野町
  • 春夏秋冬 花いっぱい、小鹿野町
  • 間取り図

この物件のおすすめポイント

内覧等のお問合せは、

特記事項を含めホームページ内の内容をすべてお読みいただき

ご理解いただきましたのちにお願いいたします。

 

秩父市の市街地から15キロほど西に位置する秩父郡小鹿野町、

小鹿野町には

街道の宿場だった古い佇まいの商店街の通りを中心に

北にロードサイド店等の建つ国道299号線(通称:バイパス)

南に町立病院や小鹿野文化センター等の建つ南裏通り

の3つのメイン通りがあります、

このお家の建つ場所は

小鹿野町の商店街の通りから1本北側、

歩きで、自転車で、お買物や病院や銀行へ行くことのできる場所です。

 

この土地は、

お家の建っている

約72坪と

駐車スペースのある

64坪の

間の認定外道路(公道)で分かれております。

2つの土地合わせて約136坪の広さ、

東側は町道

南側は町道

の、東南の角地、

東側道路の反対側はお寺さんの墓地、

なので、、、

空間が開けているからでしょうか、建て込んでいる雰囲気がありません。

 

この建物は、

昭和45年に新築され、その後昭和49年に増築されました、

お部屋の数8室!

広さが約57坪!!

大きなお家です。

築年数が経っておりますのでそのまま使うのは難しいと思われます、

どのように考えるかはお客様次第ですが、

DIYを楽しむ生活を考えているかたに適しているお家と思われます、

解体して新築を考えているかたにも適していると思われます、

すぐに住めるお家を考えているかたには適さないお家ではと思われます、

古い建物の修繕はどの位の費用が掛かるのか出しにくいものです、

業者さんで大きなリフォームをと考えているかたには適さないお家ではと思われます。

写真一覧の最後に間取図を入れてありますのでご確認ください、

各写真に注釈を入れてありますのでご確認ください。

 

交通は

バス停「小鹿野町」          80m

買い物は

スーパー「業務スーパー」さん    530m

スーパー「ラコマート」さん     580m

ホームセンター「コメリ」さん    420m

コンビニ「セブンイレブン」さん   450m

ドラッグストア「ウェルシア」さん  560m

JAちちぶ小鹿野直売所さん     650m

学校は

小鹿野町立小鹿野小学校       660m

小鹿野町立小鹿野中学校       530m

病院は

小鹿野町立医院さん         350m

その他

小鹿野町役場            680m

小鹿野郵便局               890m

埼玉りそな銀行 小鹿野支店さん       95m

(以上はアプリからの数値です)

 

写真一覧の中で間取図も紹介しております、

各写真にはキャプションをつけております、

最後までご覧いただければ幸いです。

一部、以前の写真が含まれます。

 

お問い合わせは、別欄『特記事項』を必ずご確認いただいた後、お願いいたします。

お問い合わせフォームの『住所』欄の一部省略はおやめください、

また、アンケートの選択もお願いいたします。

 

写真を含めた本記事内容の、無断複写や転載等(SNSやブログを含めて)は、

かたくお断りいたします。

 

『近い田舎 と 近い仲 ちかいなか秩父』で、

お客様をお待ちいたしております。

小鹿野町HP

小鹿野町移住情報ページ

この物件について問い合わせする

内覧申し込みを含む本物件に関する
お問い合わせには利用者登録が必要です

利用者登録

本物件には仲介手数料が発生します
内覧をご希望の場合には必ず担当業者へご連絡いただき、現地訪問をお願いします

物件概要

小鹿野町

基本情報

物件番号:小鹿-98
価格
620万円
住所
埼玉県秩父郡小鹿野町小鹿野1818-2
分類
土地と建物
売却・賃貸
売却
取引形態
媒介
主要施設へのアクセス
「物件のおすすめポイント」を参照ください。
設備
電気:東京電力エナジーパートナー等
水道:公営
排水:浄化槽利用による水洗
ガス:プロパンガス
土地面積 (公簿)
452 m2
(136.73 坪)
建物面積 (公簿)
191 m2
(57.87 坪)
用途地域
都市計画区域内 用途地域無指定
接道状況
概ね南側で公道に、概ね東側で公道に接する。
特記事項
土地面積は、登記事項証明書よりの数値です。
建物面積は、登記事項証明書よりの数値です。

境界の明示は行ないません。

本物件の内覧は、
事前にご自身で現地周辺を実際に訪れていただき、
周辺環境含め、立地や物件の雰囲気がご希望に合い、
内覧して問題なければお申込みいただけるお客様にかぎらせていただきます、
実際に訪れていただけていないのに
「確認しました」の連絡は遠慮願います。
「以前周辺を通った事がある」や
「ストリートビューで確認した」の連絡も遠慮願います。
ご本人様ご家族様以外とご一緒での内覧はご遠慮願います。
現在および将来の防犯の観点から、多くのかたに内覧いただく事は望んでおりません。

改めての内覧日のお約束は、本ホームページ問い合わせフォームからお願いいたします、
直前でのご連絡の場合、ご希望にそえない事が多いと思いますがご了承ください。
なお、電話にての予約はお受けいたしておりません。
また、ご本人様以外からの予約はお受けいたしておりません。

虚偽の内容にてのお問い合わせはご遠慮願います、
他のお客様並びに売主様に迷惑をお掛けする場合があります。

ちちぶ空き家バンクでは、
内覧時には、事務局宛の『ちちぶ空き家バンク物件内覧確認書』をご提出いただいております。
購入時には、小鹿野町宛の『空き家利用申込書』並びに『誓約書』をご提出いただいております。
転売目的、賃貸目的、宿泊業目的、等での利用は出来ません。

写真や動画の撮影はお断りいたします。

空き家バンクに登録されているお家を、
モデルハウスと思われているかたや
将来の参考に試しに見てみたいとのかたや
許可なく写真や動画撮影を行なうかたが多いため、
また、建物保護の観点から、
このようなかたちをとらさせていただいております、
ご理解いただけますと幸いです。

地図や地番を表記しておりますのでご自身で行かれて周辺から見ていただくのは歓迎です、
なお、敷地内に入るのは絶対に止めて下さい、ご近所さんから不審に思われることがあります。
過去、庭の樹々や建物の一部を毀損したのではと思われる事象がありました、敷地内には入らないでください。
過去、近所のお家をかってに写真に撮られたかたがおりました、そのような行為は行なわないでください。
道路から見ていただく際に駐停車や方向転換等でご近所さんの迷惑になる行為は絶対に行なわないでください。
近隣のお宅を訪ねることは絶対に止めて下さい、昨今、知らない人に突然訪問されるのは不安になるものです。

固定資産税額、売却理由、どのような売主さんか、等のお問い合わせには
お答えできません、ご理解いただけますと幸いです。
なお、資料等の送信や郵送はいたしておりません。

お問い合わせやお申込みが重なった場合には、
売主さんの意向や、ちちぶ空き家バンクの趣旨を鑑みて判断をさせていただきます場合がございます。
内覧のお約束をさせていただいてた場合でも、購入のお申し込みがあった場合には直前での内覧のお断りをさせていただく場合があります、この場合、メールにての連絡とさせていただきます。

住宅ローンは、築年数の経っている物件、田舎の物件、の場合難しいです。
内覧いただく前に事前にこの物件でご自身にて金融機関にお問い合わせください。

感染症罹患防止のため、ご案内は最小限の人数でとさせていただいております、
なお、感染拡大等によりご案内をお断りさせていただく場合がございます。
また、荒天によりご案内をお断りさせていただく場合がございます。

建物情報

築年月
昭和45年4月新築、昭和49年8月増築
構造
木造
間取り
写真一覧の中の「平面図」を参照ください。
補修の要否
補修が必要
補修の費用負担
入居者負担

取り扱い業者情報

登録日
2026年3月23日 19:05:52
取り扱い業者
依田商店
TEL:0494-22-0707
埼玉県知事(14)4441号
担当行政
小鹿野町移住定住推進室

理想のライフスタイルから物件を探す

ゆったり週末暮らし
のびのび子育て
豊かな自然
広々庭付き・畑付き
生活に便利・街中ライフ