人気のキーワード
古民家
家庭菜園

ウッドバルコニー、眺望、お庭、魅力がいっぱい! ちちぶの皆野町、【ぐみの丘】と名のつく一角に佇むかわいらしいお家。

いろいろ
この日当たりのいいお家へは、、、
この広いバルコニーのお家へは、、、
この眺望のいいお家へは、、、
この雲海の望めるお家へは、、、
寄居町、長瀞町方面からは矢印の方へ
右斜めに入ります
このような道を進みます
右手のこのお家です
皆野町、秩父市方面からは矢印の方へ
このような道を進みます
左手のこのお家です
お花の咲く時期、売主さんからお借りしました
道沿いのドウダンツツジ
玄関へ
小ぶりな玄関
明るいリビング
南西向きの大きな窓を
開けて
ウッドのバルコニーへ
DIY好きの売主さん、一番上を
外せるように工夫しました
こんな感じで
キッチン
お手入れされてます
洗面脱衣室
浴室
浴室の窓から両神山
トイレ
二階へ
二階のお部屋
ベランダ
眺望のいいベランダ
ズームして、美の山の山頂
眺望のいいベランダ
ズームして、清流荒川の流れ
眺望のいいベランダ
浅間山
こちらは?
下を見ると
お庭から
お庭から
お隣から
お隣から
ウッドのバルコニー、下から
下も何かに使えそう
状態良いです
グミの実って赤いのですね
外水道、隣はグミの木だそうです
浄化槽
ブロアーもしっかりカバー
お庭に蝋梅
境界標と思われます
初めておじゃました時、西の空に日が沈む時間に
売主さんからお借りしました
売主さんからお借りしました
売主さんからお借りしました
道の駅みなの
の中には農協の直売所
約2kmのところにある皇鈴山展望台
ここからの眺望は素晴らしいです
約4kmのところにある彩の国ふれあい牧場、ソフトクリームが美味しいです
皆野町の天空のポピー畑
皆野町の美の山公園
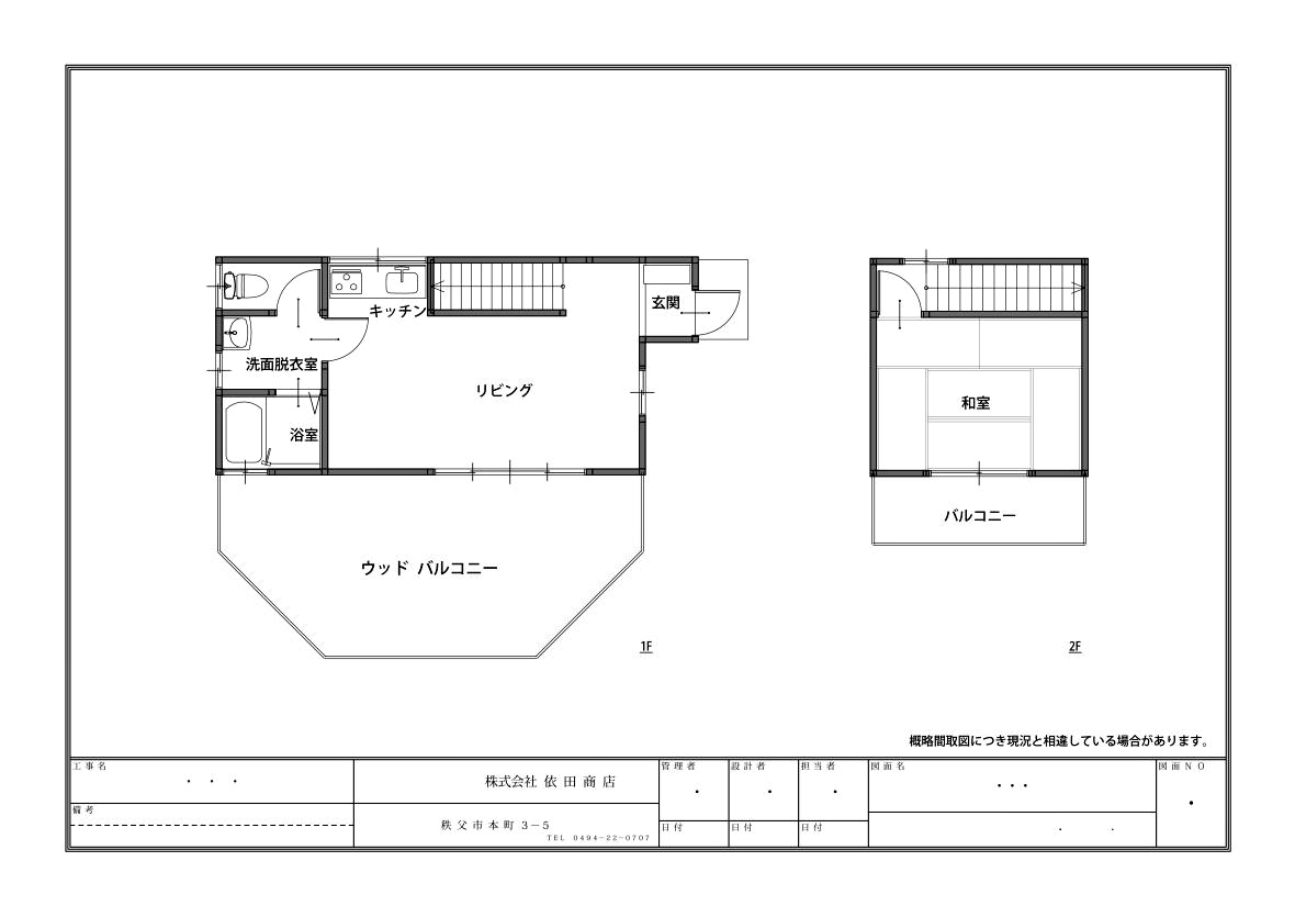
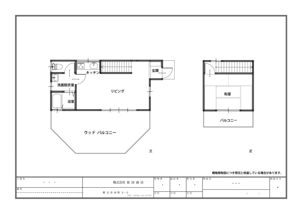
間取り図
  • いろいろ
  • この日当たりのいいお家へは、、、
  • この広いバルコニーのお家へは、、、
  • この眺望のいいお家へは、、、
  • この雲海の望めるお家へは、、、
  • 寄居町、長瀞町方面からは矢印の方へ
  • 右斜めに入ります
  • このような道を進みます
  • 右手のこのお家です
  • 皆野町、秩父市方面からは矢印の方へ
  • このような道を進みます
  • 左手のこのお家です
  • お花の咲く時期、売主さんからお借りしました
  • 道沿いのドウダンツツジ
  • 玄関へ
  • 小ぶりな玄関
  • 明るいリビング
  • 南西向きの大きな窓を
  • 開けて
  • ウッドのバルコニーへ
  • DIY好きの売主さん、一番上を
  • 外せるように工夫しました
  • こんな感じで
  • キッチン
  • お手入れされてます
  • 洗面脱衣室
  • 浴室
  • 浴室の窓から両神山
  • トイレ
  • 二階へ
  • 二階のお部屋
  • ベランダ
  • 眺望のいいベランダ
  • ズームして、美の山の山頂
  • 眺望のいいベランダ
  • ズームして、清流荒川の流れ
  • 眺望のいいベランダ
  • 浅間山
  • こちらは?
  • 下を見ると
  • お庭から
  • お庭から
  • お隣から
  • お隣から
  • ウッドのバルコニー、下から
  • 下も何かに使えそう
  • 状態良いです
  • グミの実って赤いのですね
  • 外水道、隣はグミの木だそうです
  • 浄化槽
  • ブロアーもしっかりカバー
  • お庭に蝋梅
  • 境界標と思われます
  • 初めておじゃました時、西の空に日が沈む時間に
  • 売主さんからお借りしました
  • 売主さんからお借りしました
  • 売主さんからお借りしました
  • 道の駅みなの
  • の中には農協の直売所
  • 約2kmのところにある皇鈴山展望台
  • ここからの眺望は素晴らしいです
  • 約4kmのところにある彩の国ふれあい牧場、ソフトクリームが美味しいです
  • 皆野町の天空のポピー畑
  • 皆野町の美の山公園
  • 間取り図

この物件のおすすめポイント

内覧等のお問合せは、

特記事項を含めホームページ内の内容をすべてお読みいただき、

ご理解いただきましたのちにお願いいたします。

 

秩父地域で多くこのような物件をあつかわせていただいておりますが、

日本百名山の両神山と

日本二百名山の武甲山を

望めるお家はとても少ないです、

それに加えてこのお家、、、

長野の浅間山も!!

 

別荘分譲された物件は急傾斜地に建つお家が多いですが

このお家は南西に向かってなだらかな斜面になっております、

加えて、南東道路と北東道路の角地、隣にお家なし、

だから日当たりがいいのですね。

別荘分譲された物件には駐車スペースがないお家が多いですが

このお家は敷地内にはありませんが近くに持分のある共有地があります、

写真一覧を参照ください、

だから安心して駐車ができますね。

 

約6坪の広いウッドのバルコニーで、、、

朝、朝陽に照らされる西の山を見ながら、朝食を

昼、明るいお日様のした、ランチを、読書を、お昼寝を

夕、西に沈む夕陽を見ながら、ぼぉーっと

夜、星空を、見ながら、お酒を

いいですね。

夜から朝にかけて、雲海も見られることでしょう

いいですね。

 

2階のバルコニーは、、、

武甲山、奥秩父の峰々、両神山、浅間山、と望むことのできる場

いいですね。

 

お庭、、、

花桃、カルミア、茱萸、モミジ、アジサイ、ドウダンツツジ、みかん、柿、山椒・・・

花を楽しむ

実を楽しむ

葉を楽しむ

いいですね。

建物地下に物置があります、剪定道具とか入れて置けるのも

いいですね。

 

建物、、、

オーナーさまは、4、5年に1度外壁の塗装を行なっておりました

お手入れされているお家

いいですね。

 

秩父郡皆野町三沢地区は古くからの街並みと山間部が混在する地域。

このお家の建つ場所は、

秩父市の中心部から16キロ程、車では40分、

皆野町三沢の小学校や郵便局のある地域から、山道を上って行きます、

このお家の建つ周辺は、

平成の前半に別荘地としての分譲が行なわれ、

定住されているお宅や行ったり来たり暮らしをしているお宅が混在しております。

弊社でもここ数年で、

同じ団地内で1組のお客様、周辺で12組のお客様の、

お手伝いをさせていただいております、

ありがとうございます。

 

ちちぶ全域でこのような物件のお仕事をさせていただいておりますと、

管理がされていない別荘分譲された場所も見受けられますが、

このお家の周辺は

所有者様による管理

管理会社による管理

ともに、されているなぁ、と感じております。

 

皆野寄居有料道路『皆野長瀞インターチェンジ』 約6,340m

皆野寄居有料道路『寄居風布インターチェンジ』 約6,450m

皆野町民グランド                 5,440m

秩父鉄道『親鼻駅』               6,930m

秩父鉄道『上長瀞駅』              7,080m

関越道『花園インターチェンジ』          約16km

(以上はアプリからの数値です)

 

写真一覧の中で間取図も紹介しております、

各写真にはキャプションもつけております、

最後までご覧いただければ幸いです。

一部、以前の写真が含まれます。

 

お問い合わせは、別欄『特記事項』を必ずご確認いただいた後、お願いいたします。

お問い合わせフォームの『住所』欄の一部省略はおやめください、

また、アンケートの選択もお願いいたします。

 

写真を含めた本記事内容の、無断複写や転載等(SNSやブログを含めて)は、

かたくお断りいたします。

 

『近い田舎 と 近い仲 ちかいなか秩父』で、

お客様をお待ちいたしております。

皆野町HP

 

この物件について問い合わせする

内覧申し込みを含む本物件に関する
お問い合わせには利用者登録が必要です

利用者登録

本物件には仲介手数料が発生します
内覧をご希望の場合には必ず担当業者へご連絡いただき、現地訪問をお願いします

物件概要

皆野町

基本情報

物件番号:皆-28-Y
価格
730万円
住所
埼玉県秩父郡皆野町大字三沢4349-13
分類
土地と建物
売却・賃貸
売却
取引形態
媒介
主要施設へのアクセス
「物件のおすすめポイント」を参照ください。
設備
電気:東京電力エナジーパートナー等
水道:管理組合より
排水:浄化槽利用による水洗
ガス:プロパン
土地面積 (公簿)
158 m2
(47.79 坪)
建物面積 (公簿)
38 m2
(11.37 坪)
用途地域
都市計画区域外
接道状況
概ね南東側で公道に、概ね北東側で持分のある私道に接する
特記事項
水道使用料を含めての管理費は、年間72,000円+消費税(令和8年3月現在)です。
別荘地内にて民泊を含むホテル業、物販やサービスなどの業、を行なうことはできません。

土地面積は、登記事項証明書よりの数値です。
建物面積は、固定資産税台帳よりの数値です。

建物は未登記です。

埼玉県がけ条例があります。

埼玉県立長瀞玉淀自然公園普通地域です。

境界の明示は行ないません。

本物件の内覧は、
事前にご自身で現地周辺を実際に訪れていただき、
山の中の、山の上の、別荘地内であること
物件への道が狭く荒れていて急であること
等、を確認いただき、
周辺環境含め、立地や物件の雰囲気がご希望に合い、
内覧して問題なければお申込みいただけるお客様にかぎらせていただきます、
実際に訪れていただけていないのに
「確認しました」の連絡は遠慮願います。
「以前周辺を通った事がある」や
「ストリートビューで確認した」の連絡も遠慮願います。
ご本人様ご家族様以外とご一緒での内覧はご遠慮願います。
ためしに見てみたいの内覧希望はご遠慮願います。
現在および将来の防犯の観点から、多くのかたに内覧いただく事は望んでおりません。

改めての内覧日のお約束は、本ホームページ問い合わせフォームからお願いいたします、
直前でのご連絡の場合、ご希望にそえない事が多いと思いますがご了承ください。
なお、電話にての予約はお受けいたしておりません。

虚偽の内容にてのお問い合わせはご遠慮願います、
他のお客様並びに売主様に迷惑をお掛けする場合があります。

ちちぶ空き家バンクでは、
内覧時には、事務局宛の『ちちぶ空き家バンク物件内覧確認書』をご提出いただいております。
購入時には、皆野町宛の『空き家利用申込書』並びに『誓約書』をご提出いただいております。
転売目的、賃貸目的、宿泊業目的、等での利用は出来ません。

写真や動画の撮影はお断りいたします。

空き家バンクに登録されているお家を、
モデルハウスと思われているかたや
将来の参考に試しに見てみたいとのかたや
許可なく写真や動画撮影を行なうかたが多いため、
また、建物保護の観点から、
このようなかたちをとらさせていただいております、
ご理解いただけますと幸いです。

地図や地番を表記しておりますのでご自身で行かれて周辺から見ていただくのは歓迎です、
なお、敷地内に入るのは絶対に止めて下さい、ご近所さんから不審に思われることがあります。
過去、庭の樹々や建物の一部を毀損したのではと思われる事象がありました、敷地内には入らないでください。
過去、近所のお家をかってに写真に撮られたかたがおりました、そのような行為は行なわないでください。
道路から見ていただく際に駐停車や方向転換等でご近所さんの迷惑になる行為は絶対に行なわないでください。
近隣のお宅を訪ねることは絶対に止めて下さい、昨今、知らない人に突然訪問されるのは不安になるものです。
道に、急な箇所や幅の狭い箇所や路面が荒れている箇所等があります、車の運転にはくれぐれもご注意ください。

固定資産税額、売却理由、どのような売主さんか、等のお問い合わせには
お答えできません、ご理解いただけますと幸いです。
なお、資料等の送信や郵送はいたしておりません。

お問い合わせやお申込みが重なった場合には、
売主さんの意向や、ちちぶ空き家バンクの趣旨を鑑みて判断をさせていただきます場合がございます。
内覧のお約束をさせていただいてた場合でも、購入のお申し込みがあった場合には直前での内覧のお断りをさせていただく場合があります、この場合、メールにての連絡とさせていただきます。

住宅ローンは、別荘地内、別荘利用等の場合難しいです、
また、本物件建物は未登記です、借り入れは無理と思われます。

感染症罹患防止のため、ご案内は最小限の人数でとさせていただいております、
なお、感染拡大等によりご案内をお断りさせていただく場合がございます。
また、荒天によりご案内をお断りさせていただく場合がございます。

建物情報

築年月
平成18年
構造
木造
間取り
写真一覧の中の「平面図」を参照ください。
補修の要否
多少の補修が必要
補修の費用負担
入居者負担

取り扱い業者情報

登録日
2026年3月8日 18:55:23
取り扱い業者
依田商店
TEL:0494-22-0707
埼玉県知事(14)4441号
担当行政
皆野町産業観光課

理想のライフスタイルから物件を探す

ゆったり週末暮らし
のびのび子育て
豊かな自然
広々庭付き・畑付き
生活に便利・街中ライフ