人気のキーワード
古民家
家庭菜園

キッチン2つの“準二世帯”住宅|生活便利な上町エリア|延床132㎡・カーポート付

  • 新着物件
  • 駐車場あり
  • コンビニ・スーパー近く
  • 駅近く
  • 学校近く
  • ネット光回線
  • 南側 外観
  • 外観
  • 玄関
  • 玄関
  • 廊下収納
  • 玄関収納
  • 1階和室A6畳 収納
  • 1階和室A6畳
  • 1階キッチンから和室B 4.5畳
  • 和室B 4.5畳 収納
  • 和室B 4.5畳 よりキッチン
  • 1階キッチン
  • ユニットバス
  • 1階洗濯機置き場
  • 1階洗面化粧台
  • 1階トイレ
  • 1階納戸
  • 階段
  • 階段
  • 2階洋室A、和室C 間仕切り壁なし
  • 2階洋室A、和室C 間仕切り壁なし
  • 2階LDK
  • 2階LDK
  • 2階キッチン
  • 2階キッチン
  • 2階洗濯機置場洗面
  • 2階トイレ
  • 2階洋室B
  • バルコニー
  • 眺望
  • 眺望
  • 南側 位置指定道路
  • 西側 市道
  • 北西側 外観
  • 西側 建物廻り
  • 2階給湯器
  • 1階給湯器
  • ガス撤去済
  • 勝手口 庇修繕必要
  • カーポート屋根状況
  • カーポート屋根状況
  • 残存物(ブロック基礎)
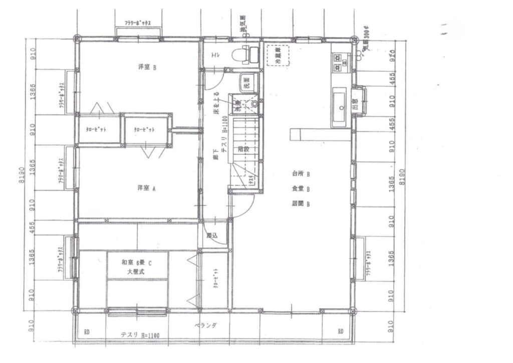
  • 2階 間取図
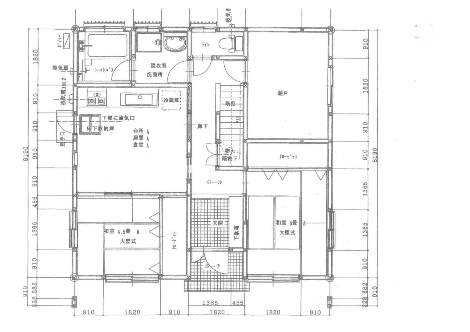
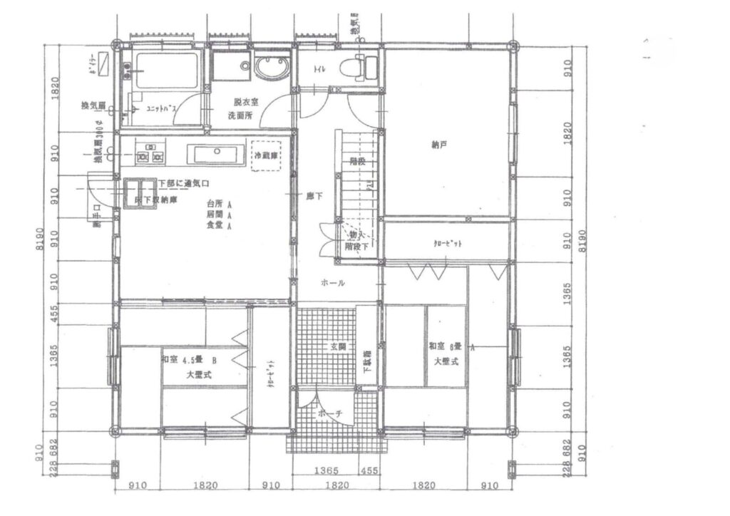
  • 1階 間取図

この物件のおすすめポイント

この物件のポイント

✔ 延床約132㎡の広さ
✔ 二世帯住宅としても利用可能
✔ 小中学校徒歩圏内
✔ カーポート付き
✔ 市街地で生活便利

周辺環境

・花の木小学校 約350m
・秩父第二中学校 約260m
・スーパー・コンビニ 徒歩圏内
・秩父市役所 徒歩圏内

生活に必要な施設が揃った便利な立地です。

リフォーム履歴

・1階給湯器 2020年交換
・2階トイレ ウォッシュレット 2010年交換

【こんな方におすすめ】

・二世帯住宅を検討中の方
・親との同居をお考えの方
・子育て世帯
・在宅ワーク中心のご家庭
・生活利便性重視の方

秩父市上町3丁目、生活便利な市街地エリアにある戸建てです。
延床約132㎡で、部屋数もしっかり。

この家の推しポイントは キッチンが2つあること
浴室は1つですが、**「キッチン分けたい二世帯」**や、
親世帯との同居・在宅ワーク・趣味部屋を作りたい方にも相性が良いです。
(いわゆる“準二世帯”的な使い方ができます)

小学校・中学校も近く、通学も安心。
カーポート付きで雨の日もラクです。

※庇・バルコニー屋根・カーポート屋根のポリカーボネートは修繕が必要です(買主様負担)。

ホーム/秩父市

※令和7年4月1日以降に増改築等を行う場合、省エネ基準(断熱性能等)は原則として増改築部分のみが対象となります。ただし、構造に関する改修(柱・梁・基礎に関わるもの)については、既存部分を含めた構造計算や補強が必要となる場合があります。詳細は建築士等の専門家にご確認ください。

※物件の内覧は、事前に周辺環境をご確認の上、立地や物件の雰囲気を確かめてからお申込み下さい。内覧日には、日程に余裕をもって本ホームページ問い合わせフォームからお願い致します。直前でのご連絡の場合、ご希望にそえない事が多いと思いますがご了承ください。電話からの予約は受け付けておりません。また、物件のお問い合わせについての弊社の返信メールが迷惑メールに入ってしまったとの報告を受けています。内覧希望の問い合わせ等をした際は、迷惑メールファルダ―もご確認ください。

※購入時には、各市町宛の『空き家利用申込書』並びに『誓約書』をご提出いただきますので、内容をご確認の上、購入をご検討いただきますようお願い致します。

※要綱第14条 空き家バンクの情報を受け、ちちぶ空き家を利用しようとする利用登録者は、
その利用において、次のいずれかの要件を満たしていなければならない。

(1) 空き家に定住し、又は定期的に滞在して、経済、教育、文化、芸術活動等を行うことにより、
圏域の活性化に寄与できる者

(2) 空き家に定住し、又は定期的に滞在して、秩父地域の自然環境、生活文化等に対する理解を
深め、圏域住民と協調して生活できる者

(3) その他各首長が適当と認めた者

この物件について問い合わせする

内覧申し込みを含む本物件に関する
お問い合わせには利用者登録が必要です

利用者登録

本物件には仲介手数料が発生します
内覧をご希望の場合には必ず担当業者へご連絡いただき、現地訪問をお願いします

物件概要

秩父市

基本情報

物件番号:秩-209
価格
1,700万円
住所
埼玉県秩父市上町三丁目23-5(地番1819番6他)
分類
土地と建物
売却・賃貸
売却
取引形態
媒介
主要施設へのアクセス
関越自動車道花園ICまで 27.7㌔

西武秩父線 西武秩父駅まで 1.3㌔

秩父鉄道 御花畑駅まで 1.2㌔

秩父市役所まで   1.5㌔

秩父さくら幼稚園まで 250m

花の木保育所まで 350m

秩父市立花の木小学校まで 350m

秩父市立第二中学校まで 260m

埼玉県立秩父高等学校まで 650m


矢尾百貨店まで 950m

ベルク秩父影森店まで 1.2㌔

コンビニまで    600m
設備
電 気 東京電力

給 湯 ガ ス

水 道 公 営

下水道 本下水

トイレ 水 洗

ガ ス 個別プロパン

土地面積 (公簿)
157 m2
(47.57 坪)
建物面積 (公簿)
132 m2
(40.07 坪)
建ぺい率
60 %
容積率
200 %
用途地域
第一種中高層住居専用地域
接道状況
西側 中央472号線 幅員5.3m 南側 位置指定道路 幅員4.0m
特記事項
※境界の明示は、行いません。
※土地面積の他に、下記位置指定道路分の持分あり。
秩父市上町3丁目1819番1 雑種地 13㎡ 持分5分の1
秩父市上町3丁目1819番5 雑種地 224㎡ 持分5分の1
※景観計画区域(市街地)※2026年4月より重点地区となる計画あり

建物情報

築年月
平成17年4月
構造
木造
間取り
※別添資料参照
補修の要否
多少の補修が必要
補修の費用負担
入居者負担

取り扱い業者情報

登録日
2026年2月17日 10:38:03
取り扱い業者
落合建設
TEL:0494-75-2395
埼玉県知事(5)20188
担当行政
秩父市移住相談センター

理想のライフスタイルから物件を探す

ゆったり週末暮らし
のびのび子育て
豊かな自然
広々庭付き・畑付き
生活に便利・街中ライフ