人気のキーワード
古民家
家庭菜園

広いフリースペースは何に? 広いバルコニーで何を? 秩父市大野原のお家。

  • いろいろ
  • 右へ
  • 矢印の方へ
  • 左へ
  • 矢印の方へ
  • このお家です
  • 境界ライン、ご注意を
  • ここ、
  • 何に
  • 使います?
  • 玄関
  • 開けて
  • 入ります
  • 玄関入って左手に洋室
  • 玄関入って右手に和室
  • もう一つ和室
  • 台所
  • 洗面脱衣室
  • 洗面化粧台
  • 浴室
  • トイレ
  • 2階へ
  • 洋室
  • 洋室
  • 続きのお部屋を
  • 建具で仕切れます
  • 広い
  • バルコニー
  • バルコニーから
  • シート防水に腐食が
  • 庭から
  • 外水道
  • 秩父鉄道『大野原駅』
  • 西武鉄道『西武秩父駅』
  • 秩父の羊山公園
  • 羊山公園の芝桜の丘
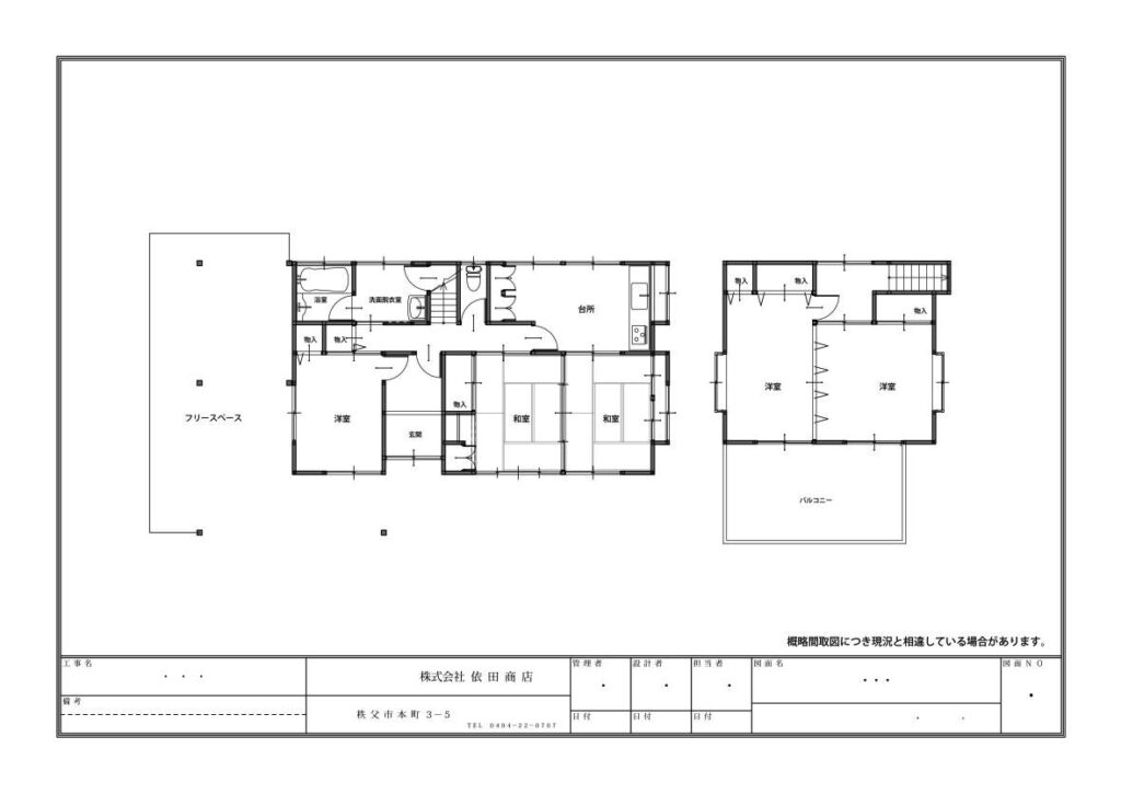
  • 間取り図

この物件のおすすめポイント

内覧等のお問合せは、

特記事項を含めホームページ内の内容をすべてお読みいただき

ご理解いただきましたのちにお願いいたします。

 

このお家の建つ秩父市大野原地区は、

秩父市の中心街から長瀞方面へ5キロほどに位置し、

古くからお住まいのお宅と

新しく越していらしたお宅が

適度に混在している地域です。

 

このお家の建つ秩父市大野原地区には、

秩父市役所原谷出張所、秩父市原谷公民館・秩父市温水プール・秩父市文化体育センターがあります、

小学校、駐在所があります。

 

秩父鉄道『大野原駅』          1,700m

西武鉄道『西武秩父駅』         5,300m

秩父市立原谷小学校            2,000m

秩父市立第一中学校            2,700m

ショッピングモール             1,700m

(スーパー フーコットさん)

(ドラッグストア マツモトキヨシさん)

(100均 ダイソーさん)

(以上はアプリからの数値です)

 

土地は、

広さ約74坪

北西側道路に接した長方形、

日あたり良いです。

 

建物は、

間取り5DK

外部に、ガレージ、工房、物置、等に使えると思えるスペースがあります。

昭和48年に平屋で新築、平成11年に2階を増築しております。

概ね荷物の搬出が終わった状態ではありますが、

築年数相当の劣化、汚れ、設備の古さ、床の腐食、等があります、

考え方はそれぞれ違いますが、

このまま使うのは難しいかもしれません、

DIYを楽しむ生活を考えているかたに適しているお家と思われます、

すぐに住めるお家を考えているかたには適さないお家ではと思われます、

古い建物の修繕はどの位の費用が掛かるのか出しにくいものです、

業者さんで大きなリフォームをと考えているかたには適さないお家ではと思われます。

 

写真一覧の中で間取図も紹介しております、

各写真にはキャプションもつけております、

最後までご覧いただければ幸いです。

一部、以前の写真が含まれます。

 

お問い合わせは、別欄『特記事項』を必ずご確認いただいた後、お願いいたします。

お問い合わせフォームの『住所』欄の一部省略はおやめください、

また、アンケートの選択もお願いいたします。

 

写真を含めた本記事内容の、無断複写や転載等(SNSやブログを含めて)は、

かたくお断りいたします。

 

『近い田舎 と 近い仲 ちかいなか秩父』で、

お客様をお待ちいたしております。

秩父市HP

この物件について問い合わせする

内覧申し込みを含む本物件に関する
お問い合わせには利用者登録が必要です

利用者登録

本物件には仲介手数料が発生します
内覧をご希望の場合には必ず担当業者へご連絡いただき、現地訪問をお願いします

物件概要

秩父市

基本情報

物件番号:秩-137-Y
価格
570万円
住所
埼玉県秩父市大野原265-3
分類
土地と建物
売却・賃貸
売却
取引形態
媒介
主要施設へのアクセス
「物件のおすすめポイント」を参照ください。
設備
電気:東京電力エナジーパートナー等
水道:公営
排水:本下水
ガス:プロパン
土地面積 (公簿)
247 m2
(74.73 坪)
建物面積 (公簿)
71 m2
(21.53 坪)
用途地域
都市計画区域内用途地域無指定
接道状況
概ね北西側で公道に接します。
特記事項
土地面積は、登記事項証明書よりの数値です、
道路後退部分を引くと233㎡(70坪)程度と思われます。
建物面積は、登記事項証明書にて平家建71.19㎡とあります、
当初の平屋での登記のままで、2階増築時の変更の登記がされておりません、
現状は105㎡(31坪)程度あると思われます。

境界の明示は行ないません。

写真一覧に南側の境界ラインの写真を入れております、
必ずご確認ください。

全て現状にてのお取引きとなります。

本物件の内覧は、
事前にご自身で現地周辺を実際に訪れていただき、
周辺環境含め、立地や物件の雰囲気がご希望に合い、
内覧して問題なければお申込みいただけるお客様にかぎらせていただきます、
実際に訪れていただけていないのに
「確認しました」の連絡は遠慮願います。
「以前周辺を通った事がある」や
「ストリートビューで確認した」の連絡も遠慮願います。
ご本人様ご家族様以外とご一緒での内覧はご遠慮願います。
現在および将来の防犯の観点から、多くのかたに内覧いただく事は望んでおりません。

改めての内覧日のお約束は、本ホームページ問い合わせフォームからお願いいたします、
直前でのご連絡の場合、ご希望にそえない事が多いと思いますがご了承ください。
なお、電話にての予約はお受けいたしておりません。

虚偽の内容にてのお問い合わせはご遠慮願います、
他のお客様並びに売主様に迷惑をお掛けする場合があります。

ちちぶ空き家バンクでは、
内覧時には、事務局宛の『ちちぶ空き家バンク物件内覧確認書』をご提出いただいております。
購入時には、秩父市宛の『空き家利用申込書』並びに『誓約書』をご提出いただいております。
転売目的、賃貸目的、宿泊業目的、での利用は出来ません。

写真や動画の撮影はお断りいたします。

空き家バンクに登録されているお家を、
モデルハウスと思われているかたや
将来の参考に試しに見てみたいとのかたや
許可なく写真や動画撮影を行なうかたが多いため、
また、建物保護の観点から、
このようなかたちをとらさせていただいております、
ご理解いただけますと幸いです。

地図や地番を表記しておりますのでご自身で行かれて周辺から見ていただくのは歓迎です、
なお、敷地内に入るのは絶対に止めて下さい、ご近所さんから不審に思われることがあります。
過去、庭の樹々や建物の一部を毀損したのではと思われる事象がありました、敷地内には入らないでください。
過去、近所のお家をかってに写真に撮られたかたがおりました、そのような行為は行なわないでください。
道路から見ていただく際に駐停車や方向転換等でご近所さんの迷惑になる行為は絶対に行なわないでください。
近隣のお宅を訪ねることは絶対に止めて下さい、昨今、知らない人に突然訪問されるのは不安になるものです。

固定資産税額、売却理由、どのような売主さんか、等のお問い合わせには
お答えできません、ご理解いただけますと幸いです。
なお、資料等の送信や郵送はいたしておりません。

お問い合わせやお申込みが重なった場合には、
売主さんの意向や、ちちぶ空き家バンクの趣旨を鑑みて判断をさせていただきます場合がございます。
内覧のお約束をさせていただいてた場合でも、購入のお申し込みがあった場合には直前での内覧のお断りをさせていただく場合があります、この場合、メールにての連絡とさせていただきます。

住宅ローンは、築年数の経っている物件、田舎の物件、の場合難しい場合があります、
なお、本建物は現状と登記にかなりの乖離があるため難しいと思われます。
内覧いただく前に事前にこの物件でご自身にて金融機関にお問い合わせください。

感染症罹患防止のため、ご案内は最小限の人数でとさせていただいております、
なお、感染拡大等によりご案内をお断りさせていただく場合がございます。
また、荒天によりご案内をお断りさせていただく場合がございます。

建物情報

築年月
昭和48年5月
構造
木造
間取り
写真一覧の中の「間取図」を参照ください。
補修の要否
大幅な補修が必要
補修の費用負担
入居者負担

取り扱い業者情報

登録日
2026年1月30日 19:03:59
取り扱い業者
依田商店
TEL:0494-22-0707
埼玉県知事(14)4441号
担当行政
秩父市移住相談センター

理想のライフスタイルから物件を探す

ゆったり週末暮らし
のびのび子育て
豊かな自然
広々庭付き・畑付き
生活に便利・街中ライフ