人気のキーワード
古民家
家庭菜園

【価格改定】 ログハウス! それも程度の良いログハウス!! コンクリート造の工房スペースもあります。 ちちぶの皆野町【もみじの里】と名のつく一角に佇むお家。

  • ログハウス
いろいろ
少し前は、昼間は、
もみじの里の名前通り、真っ赤に
程度の良いログハウスへは
皆野町、秩父市、横瀬町方面からはここを
長瀞町、寄居町方面からはここを
矢印の方へ上ります
ここの目印は
道なりに左へ
この場所の秋
団地に入って、管理されています
突きあたりを左へ
曲がって左手のこのログハウス
このログハウス
程度の良い
ログ
お庭から
お庭のカエデ
お庭のカエデ、少し色ずぃて
輸入の窓が
素敵です
ログハウスの中から
輸入の窓は素敵です
では
アプローチを
右手に
ウッドのテラス
屋根があるので木材に優しい、だから、持ちもいいです
反対から
輸入の、ドア、窓、素敵です
玄関の
厚めの木製のドアを開けて
ログハウスの中へ
リビングからキッチン
リビング
無垢板の床、色の変化と若干のダメージ、まさに経年の味
ここは?
薪ストーブはここに?
煙突もあるし
リビングの
スライディングパティオドアを開けて
ウッドのテラスへ
ウッドのテラスから
ウッドのテラスを下から見ると
輸入窓なのに網戸もしっかりと、ペアのガラスも性能よさそう
キッチン
洗面脱衣室
浴室
浴室の壁は板張り
カビもありません
トイレ
2階へ
2階洋室
2階ロフトから
ウッドのバルコニーへ
程度の良いバルコニー
バルコニーから正面に
両神山と街並み
冬は、、、
よく見えます
バルコニーから夕陽が、雲海が、
バルコニーから左斜めに
奥秩父の峰々
階段を下りて
右手に
ドアが
コンクリート造の中は
こんな感じ
上を見ると1階の床が、断熱材もしっかりと
庭に蝋梅
庭にヤマブキ
庭にクリスマスローズ
庭に紫陽花、どんな花だろ?
庭にワラビ、葉になっちゃった
庭に外水道
道の駅 みなの
の中には農協の直売所
皆野町の 天空のポピー畑
皆野町の 美の山公園
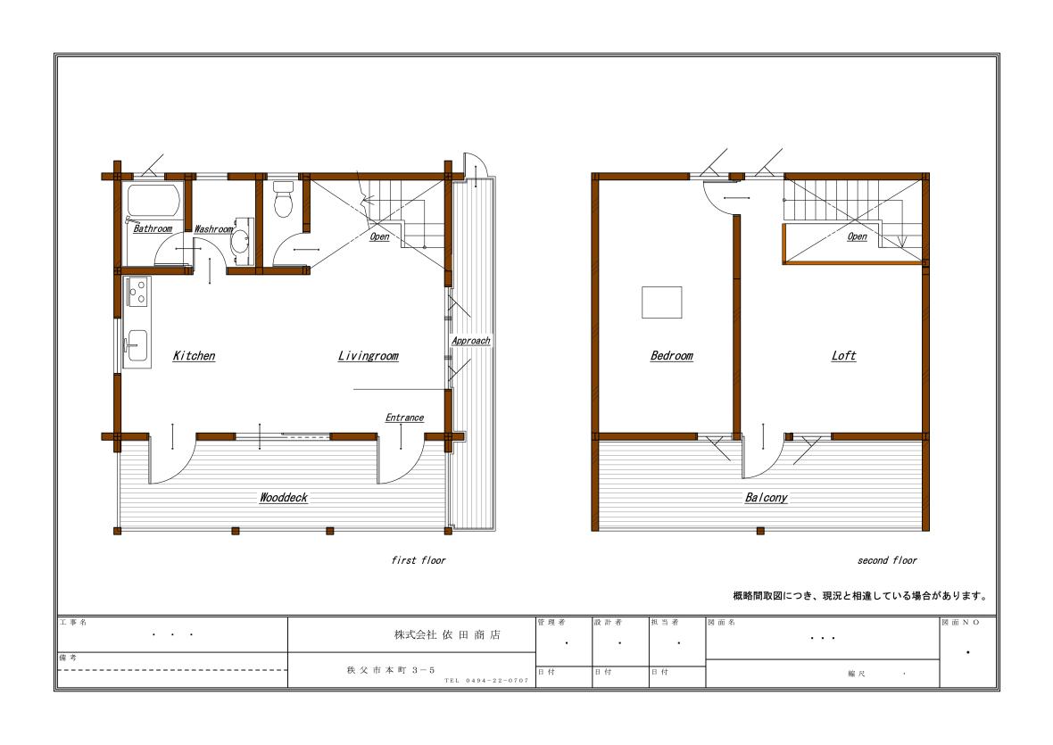
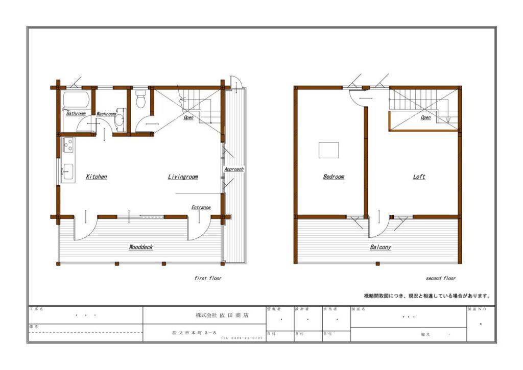
間取図
  • いろいろ
  • 少し前は、昼間は、
  • もみじの里の名前通り、真っ赤に
  • 程度の良いログハウスへは
  • 皆野町、秩父市、横瀬町方面からはここを
  • 長瀞町、寄居町方面からはここを
  • 矢印の方へ上ります
  • ここの目印は
  • 道なりに左へ
  • この場所の秋
  • 団地に入って、管理されています
  • 突きあたりを左へ
  • 曲がって左手のこのログハウス
  • このログハウス
  • 程度の良い
  • ログ
  • お庭から
  • お庭のカエデ
  • お庭のカエデ、少し色ずぃて
  • 輸入の窓が
  • 素敵です
  • ログハウスの中から
  • 輸入の窓は素敵です
  • では
  • アプローチを
  • 右手に
  • ウッドのテラス
  • 屋根があるので木材に優しい、だから、持ちもいいです
  • 反対から
  • 輸入の、ドア、窓、素敵です
  • 玄関の
  • 厚めの木製のドアを開けて
  • ログハウスの中へ
  • リビングからキッチン
  • リビング
  • 無垢板の床、色の変化と若干のダメージ、まさに経年の味
  • ここは?
  • 薪ストーブはここに?
  • 煙突もあるし
  • リビングの
  • スライディングパティオドアを開けて
  • ウッドのテラスへ
  • ウッドのテラスから
  • ウッドのテラスを下から見ると
  • 輸入窓なのに網戸もしっかりと、ペアのガラスも性能よさそう
  • キッチン
  • 洗面脱衣室
  • 浴室
  • 浴室の壁は板張り
  • カビもありません
  • トイレ
  • 2階へ
  • 2階洋室
  • 2階ロフトから
  • ウッドのバルコニーへ
  • 程度の良いバルコニー
  • バルコニーから正面に
  • 両神山と街並み
  • 冬は、、、
  • よく見えます
  • バルコニーから夕陽が、雲海が、
  • バルコニーから左斜めに
  • 奥秩父の峰々
  • 階段を下りて
  • 右手に
  • ドアが
  • コンクリート造の中は
  • こんな感じ
  • 上を見ると1階の床が、断熱材もしっかりと
  • 庭に蝋梅
  • 庭にヤマブキ
  • 庭にクリスマスローズ
  • 庭に紫陽花、どんな花だろ?
  • 庭にワラビ、葉になっちゃった
  • 庭に外水道
  • 道の駅 みなの
  • の中には農協の直売所
  • 皆野町の 天空のポピー畑
  • 皆野町の 美の山公園
  • 間取図

この物件のおすすめポイント

820万円から570万円に価格を改定いたしました。

(令和8年4月26日)

 

写真を数枚追加しました。

(令和8年4月26日、19時10分)

写真を数枚追加しました。

(令和7年12月9日、19時40分)

 

内覧等のお問合せは、

特記事項を含めホームページ内の内容をすべてお読みいただき

ご理解いただきましたのちにお願いいたします。

 

リビングから続くウッドのテラスから

ロフトから続く2階のウッドのバルコニーから

新芽の春、深緑の夏、紅葉の秋、落葉の冬、四季折々楽しみです。

 

このお家は、ログハウス、憧れのログハウス、それも程度の良いログハウス、

BESSという名のビルダーさんがビッグフットの名で建築されていた時代のログハウス、

簡単なキットを組み立てたようなログハウスでなく、しっかりとしたログハウス、

経年変化による味のある厚そうな無垢の床板なんて惚れ惚れします。

 

ログハウスのお家、上階はロフトだけも多いですが、このお家、独立したお部屋も、

1階がワンフロアで、上階は独立したお部屋とロフトになっております、

1階の下部も利用できます、工房、アトリエ、倉庫、お客様ならどのように?

空間が楽しめますね。

 

ウッドのテラスで、、、  ウッドのバルコニーで、、、

朝、朝陽に照らされる西の山を見ながら、朝食を

昼、明るいお日様のした、ランチを、読書を、お昼寝を

夕、西に沈む夕陽を見ながら、ぼぉーっと

夜、星空を、見ながら、お酒を

いいですね。

夜から朝にかけて、雲海も見られることでしょう

いいですね。

 

このお家、

建てられて26年が経ちます、

別荘としての利用でしたから生活してての汚れとかは少ないです、

ログハウスにありがちな水シミの箇所も見あたりません、

程度がいいです。

 

秩父郡皆野町三沢地区は古くからの街並みと山間部が混在する地域。

このお家の建つ場所は、

秩父市の中心部から16キロ程、車では40分弱、

皆野町三沢の小学校や郵便局のある地域から、山道を上って行きます、

このお家の建つ周辺は、

平成の前半に別荘地としての分譲が行なわれ、

定住されているお宅や行ったり来たり暮らしをしているお宅が混在しております。

弊社でもここ数年で、

同じ団地内で5軒、近くで7軒、合わせて12組のお客様のお手伝いをさせていただいております、

ありがとうございます。

ちちぶ全域でこのような物件のお仕事をさせていただいておりますと、

管理がされていない別荘分譲された場所も見受けられますが、

このお家の周辺は

所有者様による管理

管理会社による管理

ともに、されているなぁ、と感じております。

 

皆野寄居有料道路『寄居風布インターチェンジ』 約5,900m

皆野寄居有料道路『皆野長瀞インターチェンジ』 約6,030m

皆野町民グランド        5,130m

秩父鉄道『親鼻駅』         6,620m

秩父鉄道『上長瀞駅』        6,770m

関越道『花園インターチェンジ』  約16km

(以上はアプリからの数値です)

 

オーナー様は現在も別荘として利用しております、

ですので、家具や電化製品が備え付けられております、

それらの品をそのまま使っていただけるお客様を希望します、

オーナー様が現在も使っているわけですから、

お客様もすぐにスタートできますね、ちちぶ暮らしを、

お客様もすぐにスタートできますね、ログハウス暮らしを。

 

写真一覧の中で間取図も紹介しております、

各写真にはキャプションもつけております、

最後までご覧いただければ幸いです。

一部、以前の写真が含まれます。

 

お問い合わせは、別欄『特記事項』を必ずご確認いただいた後、お願いいたします。

お問い合わせフォームの『住所』欄の一部省略はおやめください、

また、アンケートの選択もお願いいたします。

 

写真を含めた本記事内容の、無断複写や転載等(SNSやブログを含めて)は、

かたくお断りいたします。

 

『近い田舎 と 近い仲 ちかいなか秩父』で、

お客様をお待ちいたしております。

皆野町HP

 

この物件について問い合わせする

内覧申し込みを含む本物件に関する
お問い合わせには利用者登録が必要です

利用者登録

本物件には仲介手数料が発生します
内覧をご希望の場合には必ず担当業者へご連絡いただき、現地訪問をお願いします

物件概要

皆野町

基本情報

物件番号:皆-86
価格
570万円
住所
埼玉県秩父郡皆野町大字三沢4299-52
分類
土地と建物
売却・賃貸
売却
取引形態
媒介
主要施設へのアクセス
「物件のおすすめポイント」を参照ください。
設備
電気:東京電力エナジーパートナー等
水道:管理組合より
排水:浄化槽利用による水洗
ガス:プロパン
土地面積 (公簿)
181 m2
(54.75 坪)
建物面積 (公簿)
72 m2
(21.87 坪)
用途地域
都市計画区域外
接道状況
概ね東側で持分のある私道に接します。
特記事項
旧価格(820万円)公開日 令和7年11月6日
新価格(570万円)公開日 令和8年4月26日

水道使用料を含めての管理費は、年間72,000円+消費税(令和7年10月現在)です。
別荘地内にて民泊を含むホテル業、物販やサービスなどの業、を行なうことはできません。

本敷地には駐車スペースがありません。

本建物は傾斜地に建てられております。

土地面積は、登記事項証明書よりの数値です。
建物面積は、登記事項証明書よりの数値です。

埼玉県がけ条例があります。
埼玉県立長瀞玉淀自然公園普通地域です。

境界の明示は行ないません。

本物件の内覧は、
事前にご自身で現地周辺を実際に訪れていただき、
山の中の、山の上の、別荘地内であること等、を確認いただき、
周辺環境含め、立地や物件の雰囲気がご希望に合い、
内覧して問題なければお申込みいただけるお客様にかぎらせていただきます、
実際に訪れていただけていないのに
「確認しました」の連絡は遠慮願います。
「以前周辺を通った事がある」や
「ストリートビューで確認した」の連絡も遠慮願います。
ご本人様ご家族様以外とご一緒での内覧はご遠慮願います。
ログハウスためしに見てみたいの内覧希望はご遠慮願います。
現在および将来の防犯の観点から、多くのかたに内覧いただく事は望んでおりません。

改めての内覧日のお約束は、本ホームページ問い合わせフォームからお願いいたします、
直前でのご連絡の場合、ご希望にそえない事が多いと思いますがご了承ください。
なお、電話にての予約はお受けいたしておりません。

虚偽の内容にてのお問い合わせはご遠慮願います、
他のお客様並びに売主様に迷惑をお掛けする場合があります。

ちちぶ空き家バンクでは、
内覧時には、事務局宛の『ちちぶ空き家バンク物件内覧確認書』をご提出いただいております。
購入時には、皆野町宛の『空き家利用申込書』並びに『誓約書』をご提出いただいております。
転売目的、賃貸目的、での利用は出来ません。

写真や動画の撮影はお断りいたします。

空き家バンクに登録されているお家を、
モデルハウスと思われているかたや
将来の参考に試しに見てみたいとのかたや
許可なく写真や動画撮影を行なうかたが多いため、
また、建物保護の観点から、
このようなかたちをとらさせていただいております、
ご理解いただけますと幸いです。

地図や地番を表記しておりますのでご自身で行かれて周辺から見ていただくのは歓迎です、
なお、敷地内に入るのは絶対に止めて下さい、ご近所さんから不審に思われることがあります。
過去、庭の樹々や建物の一部を毀損したのではと思われる事象がありました、敷地内には入らないでください。
過去、近所のお家をかってに写真に撮られたかたがおりました、そのような行為は行なわないでください。
道路から見ていただく際に駐停車や方向転換等でご近所さんの迷惑になる行為は絶対に行なわないでください。
近隣のお宅を訪ねることは絶対に止めて下さい、昨今、知らない人に突然訪問されるのは不安になるものです。
道に、急な箇所や幅の狭い箇所や路面が荒れている箇所等があります、車の運転にはくれぐれもご注意ください。

固定資産税額、売却理由、どのような売主さんか、等のお問い合わせには
お答えできません、ご理解いただけますと幸いです。
なお、資料等の送信や郵送はいたしておりません。

お問い合わせやお申込みが重なった場合には、
売主さんの意向や、ちちぶ空き家バンクの趣旨を鑑みて判断をさせていただきます場合がございます。
内覧のお約束をさせていただいてた場合でも、購入のお申し込みがあった場合には直前での内覧のお断りをさせていただく場合があります、この場合、メールにての連絡とさせていただきます。

住宅ローンは、築年数の経っている物件、田舎の物件、別荘物件の場合、難しいです。
内覧いただく前に事前にこの物件でご自身にて金融機関にお問い合わせください。

感染症罹患防止のため、ご案内は最小限の人数でとさせていただいております、
なお、感染拡大等によりご案内をお断りさせていただく場合がございます。
また、荒天によりご案内をお断りさせていただく場合がございます。

建物情報

築年月
平成11年7月
間取り
写真一覧の中の「平面図」を参照ください。
補修の要否
多少の補修が必要
補修の費用負担
入居者負担

取り扱い業者情報

登録日
2025年11月6日 18:20:24
取り扱い業者
依田商店
TEL:0494-22-0707
埼玉県知事(14)4441号
担当行政
皆野町産業観光課

理想のライフスタイルから物件を探す

ゆったり週末暮らし
のびのび子育て
豊かな自然
広々庭付き・畑付き
生活に便利・街中ライフ