人気のキーワード
古民家
家庭菜園

水の綺麗な河原も、桜の綺麗なお寺さんも、駅も、名水も、徒歩圏です。 秩父市荒川上田野の和のお家、細かい仕事がされています。

  • 駐車場あり
  • 家庭菜園できる
いろいろ
秩父市街地からはここを右に
前の道
道路から
道路から
門を
開けて
入ります
外観
玄関へ
玄関の横にも
スペースがあります
そのスペースに外水道あります
それでは
お家の中へ
玄関の天井が格天井とは!
下駄箱の上の窓からは良い風が
引き戸なので網戸も
えっ! 初めて見ました、網戸に鍵が
式台も
あがりましょう
まっすぐのびる廊下
には、手摺りが
真壁なので幅が広いです
玄関入って左手の10帖の和室、広いです
コーナーの出窓が
素敵です
地板も厚く
建具も素敵
天井も素敵
細かい仕事
細かい仕事
これは?
明るい広縁
和室
和室から
和室から
和室
書院
細かい仕事
明るい広縁
広縁から外へ
続き間
欄間
続き間
和室
摺り上げ猫間障子
和室
こちら側も摺り上げ猫間障子
天井
細かい仕事
便利な納戸
台所、ここはリフォー必須
台所の隣に少し広い洗面脱衣室、動線いいね
少し広い浴室
1階トイレ
男性用、いいね
2階へ
途中に踊り場、いいね
2階洋室
こんなスペースが
棚がいっぱい
2階の
和室
和室
ベランダ
屋根のあるベランダ、いいね
武甲山かな
奥秩父方面かな
2階に洗面化粧台
2階トイレ
2階廊下
西側の道から
駐車スペース
ここは?
お部屋に
こちら側にも外水道
エコキュート
あらわしの垂木
瓦屋根
この窓便利です
秩父市荒川は・・・
しだれ桜と
そばの里
秩父市荒川の蕎麦畑
歴史ある 道の駅あらかわ
秩父市荒川の農協直売所
秩父の街からとても近い浦山ダム
だから、景色のいい浦山ダム
浦山ダムの展望スペースから
秩父市荒川総合運動公園
運動公園の近くには清流荒川で遊べる場所が
秩父鉄道『浦山口駅』
浦山口駅の近くにはおいしい名水が
秩父鉄道『武州中川駅』
西武鉄道『西武秩父駅』
秩父の羊山公園
羊山公園の芝桜の丘
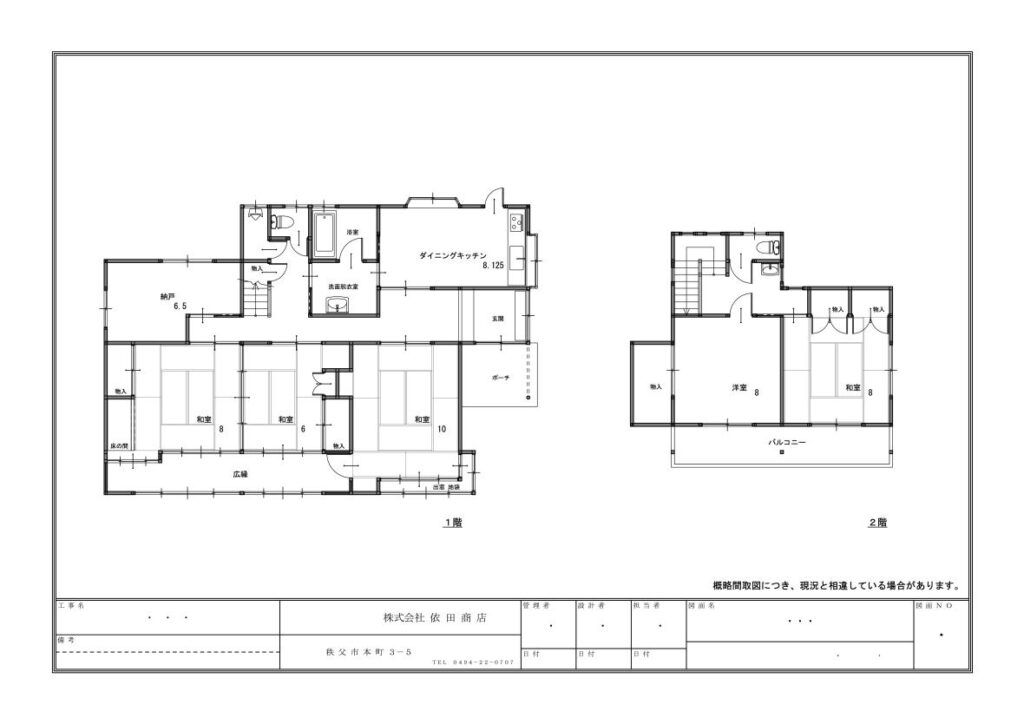
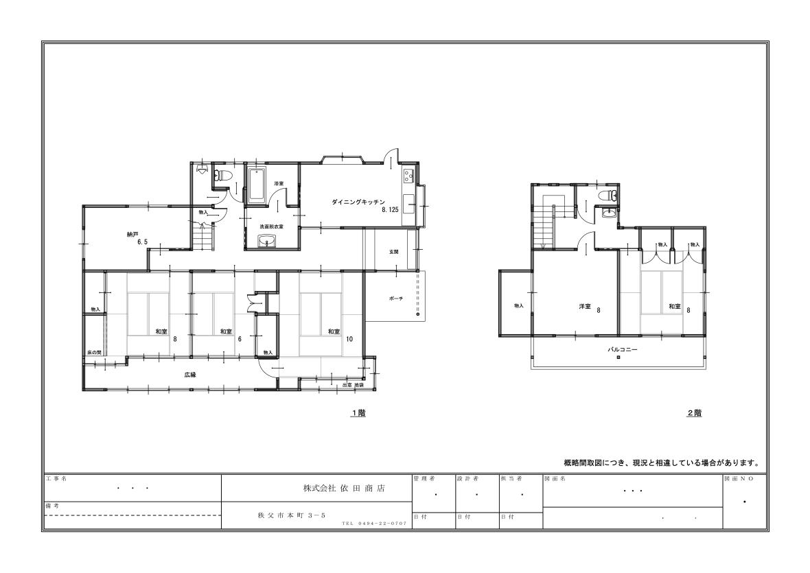
間取図
  • いろいろ
  • 秩父市街地からはここを右に
  • 前の道
  • 道路から
  • 道路から
  • 門を
  • 開けて
  • 入ります
  • 外観
  • 玄関へ
  • 玄関の横にも
  • スペースがあります
  • そのスペースに外水道あります
  • それでは
  • お家の中へ
  • 玄関の天井が格天井とは!
  • 下駄箱の上の窓からは良い風が
  • 引き戸なので網戸も
  • えっ! 初めて見ました、網戸に鍵が
  • 式台も
  • あがりましょう
  • まっすぐのびる廊下
  • には、手摺りが
  • 真壁なので幅が広いです
  • 玄関入って左手の10帖の和室、広いです
  • コーナーの出窓が
  • 素敵です
  • 地板も厚く
  • 建具も素敵
  • 天井も素敵
  • 細かい仕事
  • 細かい仕事
  • これは?
  • 明るい広縁
  • 和室
  • 和室から
  • 和室から
  • 和室
  • 書院
  • 細かい仕事
  • 明るい広縁
  • 広縁から外へ
  • 続き間
  • 欄間
  • 続き間
  • 和室
  • 摺り上げ猫間障子
  • 和室
  • こちら側も摺り上げ猫間障子
  • 天井
  • 細かい仕事
  • 便利な納戸
  • 台所、ここはリフォー必須
  • 台所の隣に少し広い洗面脱衣室、動線いいね
  • 少し広い浴室
  • 1階トイレ
  • 男性用、いいね
  • 2階へ
  • 途中に踊り場、いいね
  • 2階洋室
  • こんなスペースが
  • 棚がいっぱい
  • 2階の
  • 和室
  • 和室
  • ベランダ
  • 屋根のあるベランダ、いいね
  • 武甲山かな
  • 奥秩父方面かな
  • 2階に洗面化粧台
  • 2階トイレ
  • 2階廊下
  • 西側の道から
  • 駐車スペース
  • ここは?
  • お部屋に
  • こちら側にも外水道
  • エコキュート
  • あらわしの垂木
  • 瓦屋根
  • この窓便利です
  • 秩父市荒川は・・・
  • しだれ桜と
  • そばの里
  • 秩父市荒川の蕎麦畑
  • 歴史ある 道の駅あらかわ
  • 秩父市荒川の農協直売所
  • 秩父の街からとても近い浦山ダム
  • だから、景色のいい浦山ダム
  • 浦山ダムの展望スペースから
  • 秩父市荒川総合運動公園
  • 運動公園の近くには清流荒川で遊べる場所が
  • 秩父鉄道『浦山口駅』
  • 浦山口駅の近くにはおいしい名水が
  • 秩父鉄道『武州中川駅』
  • 西武鉄道『西武秩父駅』
  • 秩父の羊山公園
  • 羊山公園の芝桜の丘
  • 間取図

この物件のおすすめポイント

内覧等のお問合せは、

特記事項を含めホームページ内の内容をすべてお読みいただき

ご理解いただきましたのちにお願いいたします。

 

このお家の建つ場所は、しだれ桜 と そばの里、秩父市の荒川地区、

秩父市荒川地区は、家・畑・山・川が混在している長閑な街です。

その荒川地区の中心、秩父市荒川上田野地域には、

秩父市役所総合支所

消防署

小学校

幼稚園

郵便局

農協直売所

コンビニ

ガソリンスタンド 等が

そして、駅が、あります。

 

この物件は、

秩父鉄道『浦山口駅』から歩いて15分

駅から15分以内で歩く事のできるお家、ちちぶ空き家バンクの中でも珍しいです。

あの、清雲寺さんまでは、散歩コース

樹齢600年余といわれるエドヒガン桜をはじめとして数十本のしだれ桜の競演

駐車場の心配することなく、春、毎日堪能できますね。

近くの札所29番長泉院さんのしだれ桜も見事です、

このお寺さんの庭園、お手入れされていてとても綺麗です。

さくら湖と称される浦山ダムまで、2キロちょっと

水に癒され、眺望に癒され、のんびりした時間を堪能できますね。

4つ先の『三峰口駅』は、三峯神社や奥秩父の山々への玄関口

山歩きを堪能できますね。

 

この土地は、

広さが約108坪、

ちょうどいい大きさでしょうか、

家庭菜園もできそうです、

現在施工されている防草シートをはがせば。

このお家は、

広さが約46坪、

少し大きめでしょうか、

空間に余裕があります。

全体的に綺麗ではありますが、

築年数相当の汚れ、設備の古さ、等があります。

細かくは写真一覧をご覧ください。

 

交通は

秩父鉄道『浦山口駅』          1,170m

秩父鉄道『武州中川駅』         1,600m

西武鉄道『西武秩父駅』      4,770m

 

買物は

コンビニ『ローソン』さん       440m

ホームセンター『カインズ』さん  1,990m

ドラッグストア『ウェルシア』さん 1,790m

かげもりモールさん        3,570m

(総合スーパーの  ベルクさん)

(ドラッグストアの マツキヨさん)

(衣料の      しまむらさん)

 

病院は

秩父病院さん           3,570m

 

公共施設は

秩父市役所荒川総合支所         2,050m

上田野郵便局              1,570m

荒川東小学校           1,920m

荒川中学校            2,850m

かみたのこども園         1,350m

 

他は

名水 不動名水水汲み場         1,140m

荒川総合運動公園         1,270m

清流荒川の河原          1,370m

浦山ダム             2,170m

しだれ桜の清雲寺さん       1,060m

札所29番の長泉院さん        390m

(以上はアプリからの数値です)

 

写真一覧の中で間取図も紹介しております、

各写真にはキャプションもつけております、

最後までご覧いただければ幸いです。

一部、以前の写真が含まれます。

 

お問い合わせは、別欄『特記事項』を必ずご確認いただいた後、お願いいたします。

お問い合わせフォームの『住所』欄の一部省略はおやめください、

また、アンケートの選択もお願いいたします。

写真を含めた本記事内容の、無断複写や転載等(SNSやブログを含めて)は、

かたくお断りいたします。

 

『近い田舎 と 近い仲 ちかいなか秩父』で、
お客様をお待ちいたしております。

この物件について問い合わせする

内覧申し込みを含む本物件に関する
お問い合わせには利用者登録が必要です

利用者登録

本物件には仲介手数料が発生します
内覧をご希望の場合には必ず担当業者へご連絡いただき、現地訪問をお願いします

物件概要

秩父市

基本情報

物件番号:秩-133-Y
価格
750万円
住所
埼玉県秩父市荒川上田野504-12
分類
土地と建物
売却・賃貸
売却
取引形態
媒介
主要施設へのアクセス
「物件のおすすめポイント」を参照ください。
設備
電気:東京電力エナジーパートナー等
水道:公営
排水:浄化槽利用による水洗
ガス:現在設備されておりません、エコキュートにて給湯されております
土地面積 (公簿)
360 m2
(108.81 坪)
建物面積 (公簿)
155 m2
(46.91 坪)
用途地域
都市計画区域外
接道状況
概ね東側と概ね西側で公道に接します。
特記事項
土地面積は、登記事項証明書よりの数値です。
建物面積は、登記事項証明書よりの数値です。

境界の明示は行ないません。

本物件の内覧は、
事前にご自身で現地周辺を実際に訪れていただき、
周辺環境含め、立地や物件の雰囲気がご希望に合い、
内覧して問題なければお申込みいただけるお客様にかぎらせていただきます、
実際に訪れていただけていないのに
「確認しました」の連絡は遠慮願います。
「以前周辺を通った事がある」や
「ストリートビューで確認した」の連絡も遠慮願います。
ご本人様ご家族様以外とご一緒での内覧はご遠慮願います。
現在および将来の防犯の観点から、多くのかたに内覧いただく事は望んでおりません。

改めての内覧日のお約束は、本ホームページ問い合わせフォームからお願いいたします、
直前でのご連絡の場合、ご希望にそえない事が多いと思いますがご了承ください。
なお、電話にての予約はお受けいたしておりません。

虚偽の内容にてのお問い合わせはご遠慮願います、
他のお客様並びに売主様に迷惑をお掛けする場合があります。

ちちぶ空き家バンクでは、
内覧時には、事務局宛の『ちちぶ空き家バンク物件内覧確認書』をご提出いただいております。
購入時には、秩父市宛の『空き家利用申込書』並びに『誓約書』をご提出いただいております。
転売目的、賃貸目的、での利用は出来ません。

写真や動画の撮影はお断りいたします。

空き家バンクに登録されているお家を、
モデルハウスと思われているかたや
将来の参考に試しに見てみたいとのかたや
許可なく写真や動画撮影を行なうかたが多いため、
また、建物保護の観点から、
このようなかたちをとらさせていただいております、
ご理解いただけますと幸いです。

地図や地番を表記しておりますのでご自身で行かれて周辺から見ていただくのは歓迎です、
なお、敷地内に入るのは絶対に止めて下さい、ご近所さんから不審に思われることがあります。
過去、庭の樹々や建物の一部を毀損したのではと思われる事象がありました、敷地内には入らないでください。
過去、近所のお家をかってに写真に撮られたかたがおりました、そのような行為は行なわないでください。
道路から見ていただく際に駐停車や方向転換等でご近所さんの迷惑になる行為は絶対に行なわないでください。
近隣のお宅を訪ねることは絶対に止めて下さい、昨今、知らない人に突然訪問されるのは不安になるものです。

固定資産税額、売却理由、どのような売主さんか、等のお問い合わせには
お答えできません、ご理解いただけますと幸いです。
なお、資料等の送信や郵送はいたしておりません。

お問い合わせやお申込みが重なった場合には、
売主さんの意向や、ちちぶ空き家バンクの趣旨を鑑みて判断をさせていただきます場合がございます。
内覧のお約束をさせていただいてた場合でも、購入のお申し込みがあった場合には直前での内覧のお断りをさせていただく場合があります、この場合、メールにての連絡とさせていただきます。

住宅ローンは、築年数の経っている物件、田舎の物件、の場合難しい場合があります、
内覧いただく前に事前にこの物件でご自身にて金融機関にお問い合わせください。

感染症罹患防止のため、ご案内は最小限の人数でとさせていただいております、
なお、感染拡大等によりご案内をお断りさせていただく場合がございます。
また、荒天によりご案内をお断りさせていただく場合がございます。

建物情報

築年月
平成元年9月
構造
木造
間取り
写真一覧の中の「間取図」を参照ください。
補修の要否
補修が必要
補修の費用負担
入居者負担

取り扱い業者情報

登録日
2025年12月28日 19:05:04
取り扱い業者
依田商店
TEL:0494-22-0707
埼玉県知事(14)4441号
担当行政
秩父市移住相談センター

理想のライフスタイルから物件を探す

ゆったり週末暮らし
のびのび子育て
豊かな自然
広々庭付き・畑付き
生活に便利・街中ライフ