人気のキーワード
古民家
家庭菜園

419坪の土地!広いです、59坪の建物!大きいです。 お庭がとても、とても素敵です。 秩父市山田のOMソーラーのお家、美邸です。

  • 駐車場あり
  • 温泉近く
  • ネット光回線
  • 家庭菜園できる
いろいろ
お庭が素敵なこのお家へは
もみじが素敵なこのお家へは
第7区コミュニティセンターのところから向かいます
二股を右へ、ここから狭い道を道なりに進みます
つきあたりの
このお家です
紅葉したもみじの下を
玄関へ
ポーチも広く素敵な玄関
少し前は綺麗な緑
上を見ると、まさに彩り
厚みのある無垢板の鎧張り
玄関ドアを
開けて木漏れ日が
玄関、ホール、広いんです
正面の引き戸を開けると
キッチンが、この動線便利です
左のドアを開けると
リビング、明るく、とても広い、リビング
上はのちほど
明るいリビング
奥の窓の外は
リビング、奥から
輸入の大きな窓
だから明るいです
大きな座卓は
足を入れられます
リビングから
ウッドデッキへ
ウッドデッキからお庭の緑を
輸入の窓を開けて
お庭の緑と一体に
輸入の窓なのに網戸もしっかり
キッチン
キッチン
無垢のキャビネットとスライド収納
勝手口から裏庭に、良い風が入ります
キッチンから、ダイニング、和室を
和室、茶室?
外の緑が綺麗です
摺り上げ障子も趣があります
お茶室?
炉が!
この和室へは
ベンガラ色の二本引き込み戸から
ダイニング
の天井の丸い照明は
屋根のこの丸いのから灯りを
洗面脱衣室
ボールが2つ
この床いいですね
浴室
檜の浴槽
壁も板張り
緑を見ながらのお風呂時間
洗い場シャワーも2つ
??? もしかして
露天風呂!
緑の中の露天風呂
1階のトイレ
1階の広い寝室
朝が楽しみです
寝室の2つのドア
右は納戸
左はトイレ
寝室の上には
ロフトが
では リビングの階段から2階へ
緑と光につつまれて
ロフト
緑に心おちつきます
ロフト
ロフトから
無垢板の床、少しのダメージが良い味を
お客様、ここで何を?
ベランダ
木製のベランダは緑の中へ
ベランダから武甲山、落葉すればもっと見える?
ベランダからお庭を
状態いいです
2階の洋室、ゲストルームにでしょうか
2階のトイレ
2階の洗面化粧台
トイレと洗面が引き戸で、いいですね
OMソーラーの
ここから暖かさが
輸入の窓、いいですね
お庭から、ヤマボシでしょうか
お庭から、ハナミズキでしょうか
お庭から、何種類ものモミジ
お庭、何種類の樹々があるんだろう
お庭に
お庭に
お庭に、竹林の小道
お庭に
公営水道
浄化槽
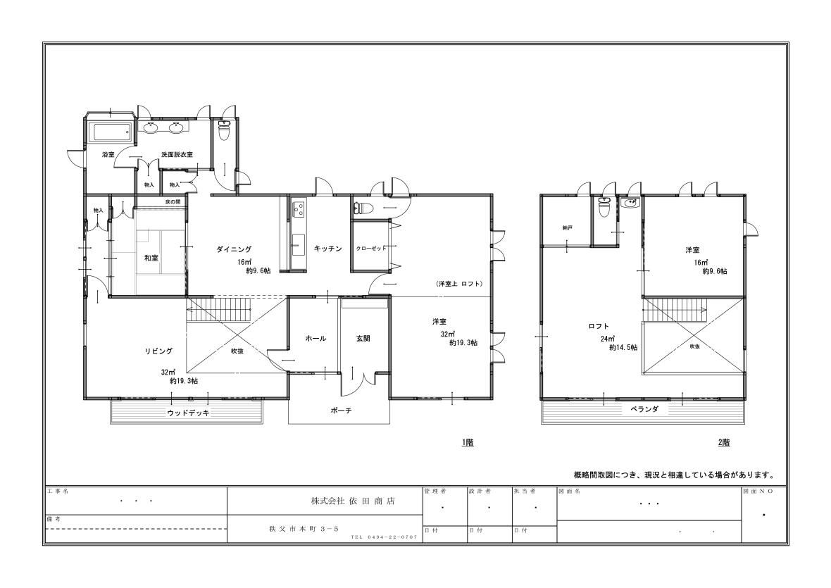
間取図
  • いろいろ
  • お庭が素敵なこのお家へは
  • もみじが素敵なこのお家へは
  • 第7区コミュニティセンターのところから向かいます
  • 二股を右へ、ここから狭い道を道なりに進みます
  • つきあたりの
  • このお家です
  • 紅葉したもみじの下を
  • 玄関へ
  • ポーチも広く素敵な玄関
  • 少し前は綺麗な緑
  • 上を見ると、まさに彩り
  • 厚みのある無垢板の鎧張り
  • 玄関ドアを
  • 開けて木漏れ日が
  • 玄関、ホール、広いんです
  • 正面の引き戸を開けると
  • キッチンが、この動線便利です
  • 左のドアを開けると
  • リビング、明るく、とても広い、リビング
  • 上はのちほど
  • 明るいリビング
  • 奥の窓の外は
  • リビング、奥から
  • 輸入の大きな窓
  • だから明るいです
  • 大きな座卓は
  • 足を入れられます
  • リビングから
  • ウッドデッキへ
  • ウッドデッキからお庭の緑を
  • 輸入の窓を開けて
  • お庭の緑と一体に
  • 輸入の窓なのに網戸もしっかり
  • キッチン
    キッチン
  • 無垢のキャビネットとスライド収納
  • 勝手口から裏庭に、良い風が入ります
  • キッチンから、ダイニング、和室を
  • 和室、茶室?
  • 外の緑が綺麗です
  • 摺り上げ障子も趣があります
  • お茶室?
  • 炉が!
  • この和室へは
  • ベンガラ色の二本引き込み戸から
  • ダイニング
  • の天井の丸い照明は
  • 屋根のこの丸いのから灯りを
  • 洗面脱衣室
  • ボールが2つ
  • この床いいですね
  • 浴室
  • 檜の浴槽
  • 壁も板張り
  • 緑を見ながらのお風呂時間
  • 洗い場シャワーも2つ
  • ??? もしかして
  • 露天風呂!
  • 緑の中の露天風呂
  • 1階のトイレ
  • 1階の広い寝室
  • 朝が楽しみです
  • 寝室の2つのドア
  • 右は納戸
  • 左はトイレ
  • 寝室の上には
  • ロフトが
  • では リビングの階段から2階へ
  • 緑と光につつまれて
  • ロフト
  • 緑に心おちつきます
  • ロフト
  • ロフトから
  • 無垢板の床、少しのダメージが良い味を
  • お客様、ここで何を?
  • ベランダ
  • 木製のベランダは緑の中へ
  • ベランダから武甲山、落葉すればもっと見える?
  • ベランダからお庭を
  • 状態いいです
  • 2階の洋室、ゲストルームにでしょうか
  • 2階のトイレ
  • 2階の洗面化粧台
  • トイレと洗面が引き戸で、いいですね
  • OMソーラーの
  • ここから暖かさが
  • 輸入の窓、いいですね
  • お庭から、ヤマボシでしょうか
  • お庭から、ハナミズキでしょうか
  • お庭から、何種類ものモミジ
  • お庭、何種類の樹々があるんだろう
  • お庭に
  • お庭に
  • お庭に、竹林の小道
  • お庭に
  • 公営水道
  • 浄化槽
  • 間取図

この物件のおすすめポイント

さっそくお問合せをいただいております、ありがとうございます。

お客様に重ねてお願いです、

お問合せをいただく前に特記事項を含め全てのご確認をお願いいたします。

所有者様は住まわれております、訪ねることは絶対に行わないでください。

(2025年11月25日 17時50分追記)

 

内覧等のお問合せは、

特記事項を含めホームページ内の内容をすべてお読みいただき

ご理解いただきましたのちにお願いいたします。

 

このお家、、、

建てられて22年経ちますが、綺麗です、いや、とても綺麗です。

オーナー様は現在住まわれております、

水もお湯も排水も電気も、もちろんお部屋も、毎日使っております、

だから、新しいオーナー様もお引渡しの日からこのお家を使い始めることができますね。

だから、新しいオーナー様もお引渡しの日からこのお家でちちぶ暮らし始めることできますね。

 

このお庭、、、

もみじの彩りがとても素敵です、

春、新芽の芽吹きとともに萌黄色のお庭に

夏、深緑が強い日差しを遮って木漏れ日のお庭に

秋、紅葉に彩られたのんびりと過ごしたくなるお庭に

冬、落葉に合わせてやさしいお日様の光がお庭に、お部屋に

 

この物件の魅力は、

◎お家!

・OMソーラーシステムにより、冬、暖かいんです、

・断熱が、気密が、良いからか、夏、涼しいんです、

・輸入の窓、無垢の床板や建具、すべてが素敵なんです、

・モジュールが尺(910㎜)でなくメーター(1000㎜)、なので間が広いんです、

リビング32㎡(19帖)あるんです、寝室32㎡(19帖)あるんです、

・緑の中の露天風呂があるんです、

他にも魅力いっぱい、写真をご覧ください。

 

◎お庭!

・とにかく広さ、400坪を超える広さ、

この広さの物件なかなかありません。

・もみじや落葉樹が主な樹々、

20年を超えて素敵お庭になりました。

・落ち葉や苔が良い雰囲気、

とにかく素敵なんです、写真をご覧ください。

 

◎清流!

横瀬川の流がすぐ下に、

せせらぎの音で、癒しの時間を。

 

このお家の建つ 秩父市高篠地域は

秩父の街中の北東に位置します、

その高篠地域の中心になる山田地区は、

古くからお住まいのお宅と

新しく越していらしたお宅が

適度に混在しております。

 

西武バス『光明寺入口』まで           750m

秩父鉄道『大野原駅』まで          2,700m

西武鉄道『横瀬駅』まで           4,500m

西武鉄道『西武秩父駅』まで         5,000m

スーパー『ラコマート』さんまで       1,760m

スーパー『フーコット』さんまで       2,200m

(ドラッグストア マツキヨさん、100均 ダイソーさん、併設です)

コンビニ『セブンイレブン山田店』さんまで    660m

ホームセンター『コメリ横瀬店』さんまで   2,800m

ドラッグストア『セイムス』さんまで     1,650m

金子クリニックさんまで             740m

秩父高篠郵便局まで                1,300m

秩父市立高篠小学校まで                900m

秩父市立高篠中学校まで                540m

新木鉱泉さんまで                 1,300m

ホテル美やまさんまで               1,050m

(以上はアプリからの数値です)

 

写真一覧の中で間取図も紹介しております、

各写真にはキャプションもつけております、

最後までご覧いただければ幸いです。

一部、以前の写真が含まれます。

 

写真を含めた本記事内容の、無断複写や転載等(SNSやブログを含めて)は、

かたくお断りいたします。

 

お問い合わせは、別欄『特記事項』を必ずご確認いただいた後、お願いいたします。

お問い合わせフォームの『住所』欄の一部省略はおやめください、

また、アンケートの選択もお願いいたします。

 

『近い田舎 と 近い仲 ちかいなか秩父』で、

お客様をお待ちいたしております。

この物件について問い合わせする

内覧申し込みを含む本物件に関する
お問い合わせには利用者登録が必要です

利用者登録

本物件には仲介手数料が発生します
内覧をご希望の場合には必ず担当業者へご連絡いただき、現地訪問をお願いします

物件概要

秩父市

基本情報

物件番号:秩-135-Y
価格
2770万円
住所
埼玉県秩父市山田2434番地
分類
土地と建物
売却・賃貸
売却
取引形態
媒介
主要施設へのアクセス
「物件のおすすめポイント」を参照ください。
設備
電気:東京電力エナジーパートナー等
水道:公営
排水:水洗(浄化槽)
ガス:プロパン
土地面積 (公簿)
1,386 m2
(419.26 坪)
建物面積 (公簿)
197 m2
(59.44 坪)
用途地域
都市計画区域内 用途地域無指定
接道状況
概ね東側で公道(市道)に接します。
特記事項
土地面積は、登記事項証明書よりの数値です。
建物面積は、登記事項証明書よりの数値です。

秩父市ハザードマップを参照ください。
https://www.city.chichibu.lg.jp/secure/1809/29.pdf

埼玉県がけ条例があります。

境界の明示は行ないません。

将来建築行為を行う場合には所謂セットバックの必要があります。

本物件の内覧は、
事前にご自身で現地周辺を実際に訪れていただき、
道が狭い事やハザードマップ等をご確認のうえ、
周辺環境含め、立地や物件の雰囲気がご希望に合い、
内覧して問題なければお申込みいただけるお客様にかぎらせていただきます、
実際に訪れていただけていないのに
「確認しました」の連絡は遠慮願います。
「以前周辺を通った事がある」や
「ストリートビューで確認した」の連絡も遠慮願います。
ご本人様ご家族様以外とご一緒での内覧はご遠慮願います。
現在および将来の防犯の観点から、多くのかたに内覧いただく事は望んでおりません。

改めての内覧日のお約束は、本ホームページ問い合わせフォームからお願いいたします、
直前でのご連絡の場合、ご希望にそえない事が多いと思いますがご了承ください。
なお、電話にての予約はお受けいたしておりません。

虚偽の内容にてのお問い合わせはご遠慮願います、
他のお客様並びに売主様に迷惑をお掛けする場合があります。

ちちぶ空き家バンクでは、
内覧時には、事務局宛の『ちちぶ空き家バンク物件内覧確認書』をご提出いただいております。
購入時には、秩父市宛の『空き家利用申込書』並びに『誓約書』をご提出いただいております。
転売目的、賃貸目的、での利用は出来ません。

写真や動画の撮影はお断りいたします。

空き家バンクに登録されているお家を、
モデルハウスと思われているかたや
将来の参考に試しに見てみたいとのかたや
許可なく写真や動画撮影を行なうかたが多いため、
また、建物保護の観点から、
このようなかたちをとらさせていただいております、
ご理解いただけますと幸いです。

地図や地番を表記しておりますのでご自身で行かれて周辺から見ていただくのは歓迎です、
なお、敷地内に入るのは絶対に止めて下さい、ご近所さんから不審に思われることがあります。
過去、庭の樹々や建物の一部を毀損したのではと思われる事象がありました、敷地内には入らないでください。
過去、近所のお家をかってに写真に撮られたかたがおりました、そのような行為は行なわないでください。
道路から見ていただく際に駐停車や方向転換等でご近所さんの迷惑になる行為は絶対に行なわないでください。
近隣のお宅を訪ねることは絶対に止めて下さい、昨今、知らない人に突然訪問されるのは不安になるものです。
道が狭いです、つきあたりです、Uターンできません、大きなな車両で向かわれることはお勧めいたしません、ご配慮をお願いします。

売主様は居住されております、
直接訪ねるや声をかける等の行為は絶対に行わないでください。

固定資産税額、売却理由、どのような売主さんか、等のお問い合わせには
お答えできません、ご理解いただけますと幸いです。
なお、資料等の送信や郵送はいたしておりません。

お問い合わせやお申込みが重なった場合には、
売主さんの意向や、ちちぶ空き家バンクの趣旨を鑑みて判断をさせていただきます場合がございます。
内覧のお約束をさせていただいてた場合でも、購入のお申し込みがあった場合には直前での内覧のお断りをさせていただく場合があります、この場合、メールにての連絡とさせていただきます。

住宅ローンは、築年数の経っている物件、田舎の物件、の場合難しい場合があります、
内覧いただく前に事前にこの物件でご自身にて金融機関にお問い合わせください。

感染症罹患防止のため、ご案内は最小限の人数でとさせていただいております、
なお、感染拡大等によりご案内をお断りさせていただく場合がございます。
また、荒天によりご案内をお断りさせていただく場合がございます。

建物情報

築年月
平成15年3月
構造
木造
間取り
写真一覧の中の「間取図」を参照ください。
補修の要否
多少の補修が必要
補修の費用負担
入居者負担
現在の利用状況
居住中

取り扱い業者情報

登録日
2025年11月19日 18:55:44
取り扱い業者
依田商店
TEL:0494-22-0707
埼玉県知事(14)4441号
担当行政
秩父市移住相談センター

理想のライフスタイルから物件を探す

ゆったり週末暮らし
のびのび子育て
豊かな自然
広々庭付き・畑付き
生活に便利・街中ライフ